전주 음식관광 창조타운 조성사업 현상

2024
  • 대지위치
    • 전북 전주시 경원동 3가 30-1, 30-5~8
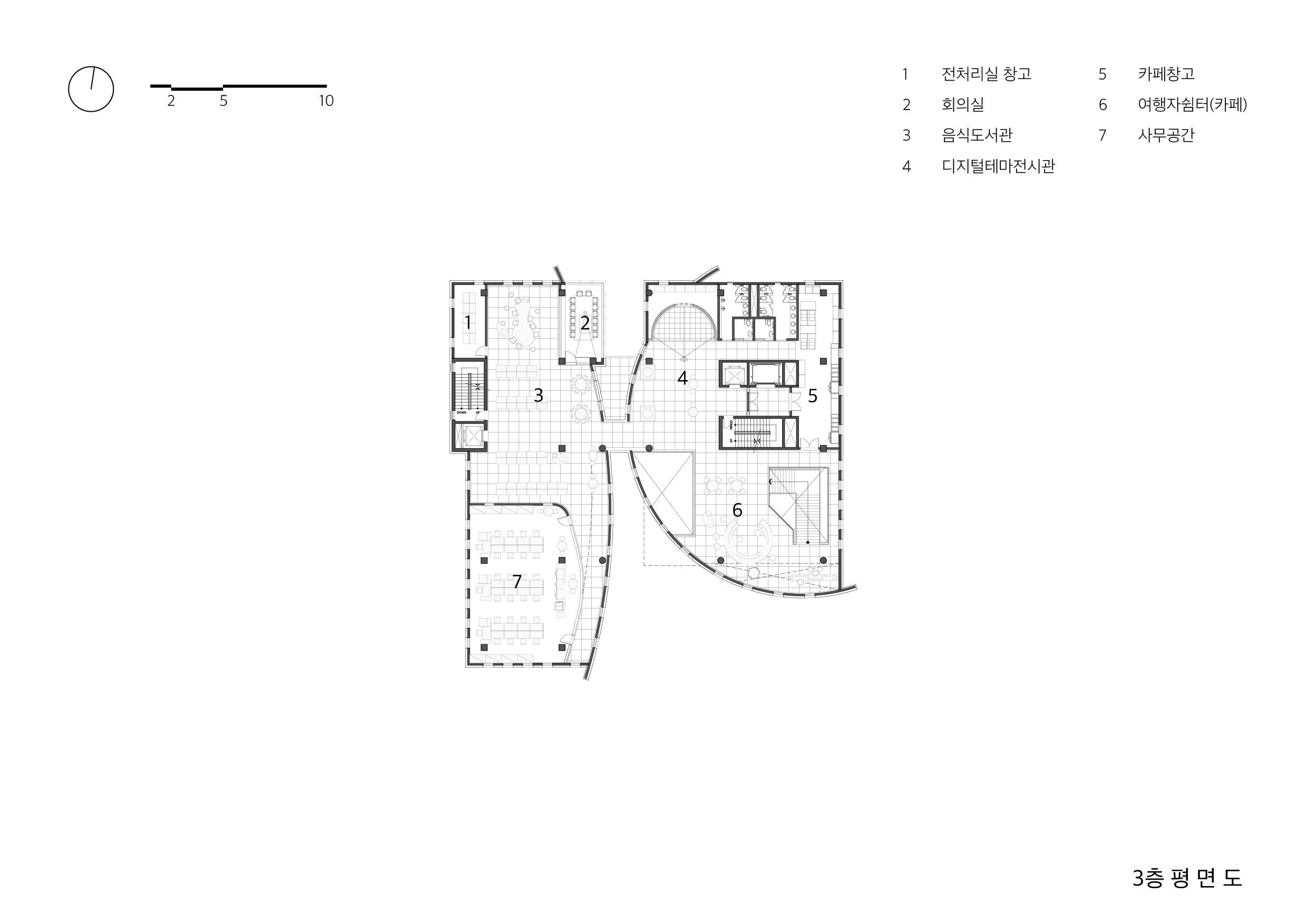
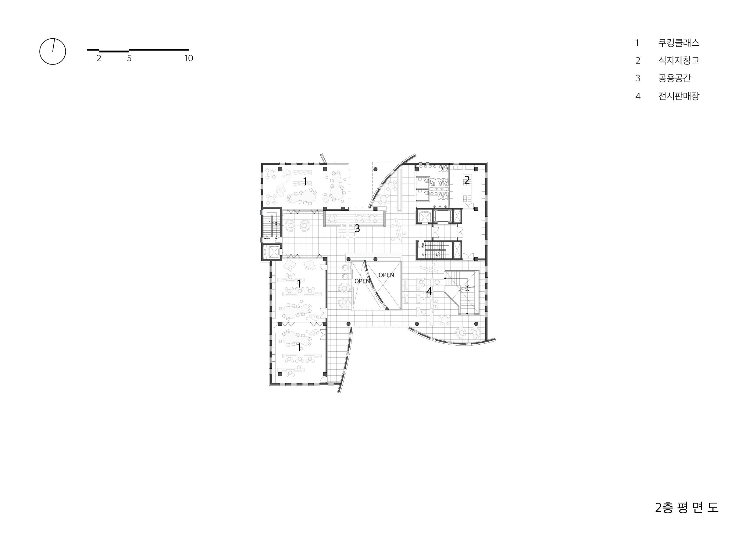
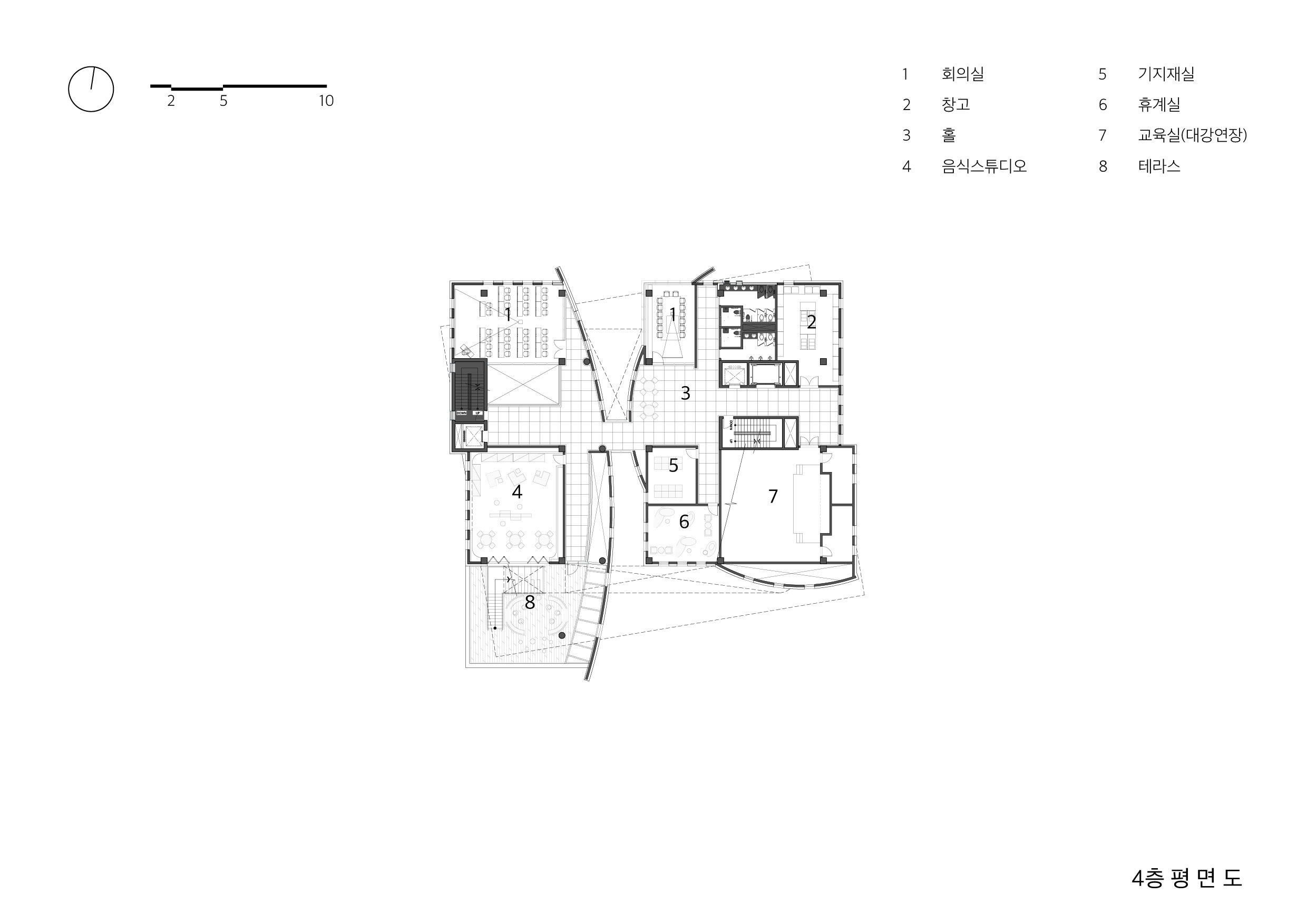
  • 주요용도
    • 문화 및 집회시설
  • 대지면적
    • 2,829.80㎡
  • 건축면적
    • 1,153.64㎡
  • 연면적
    • 9,298.16㎡
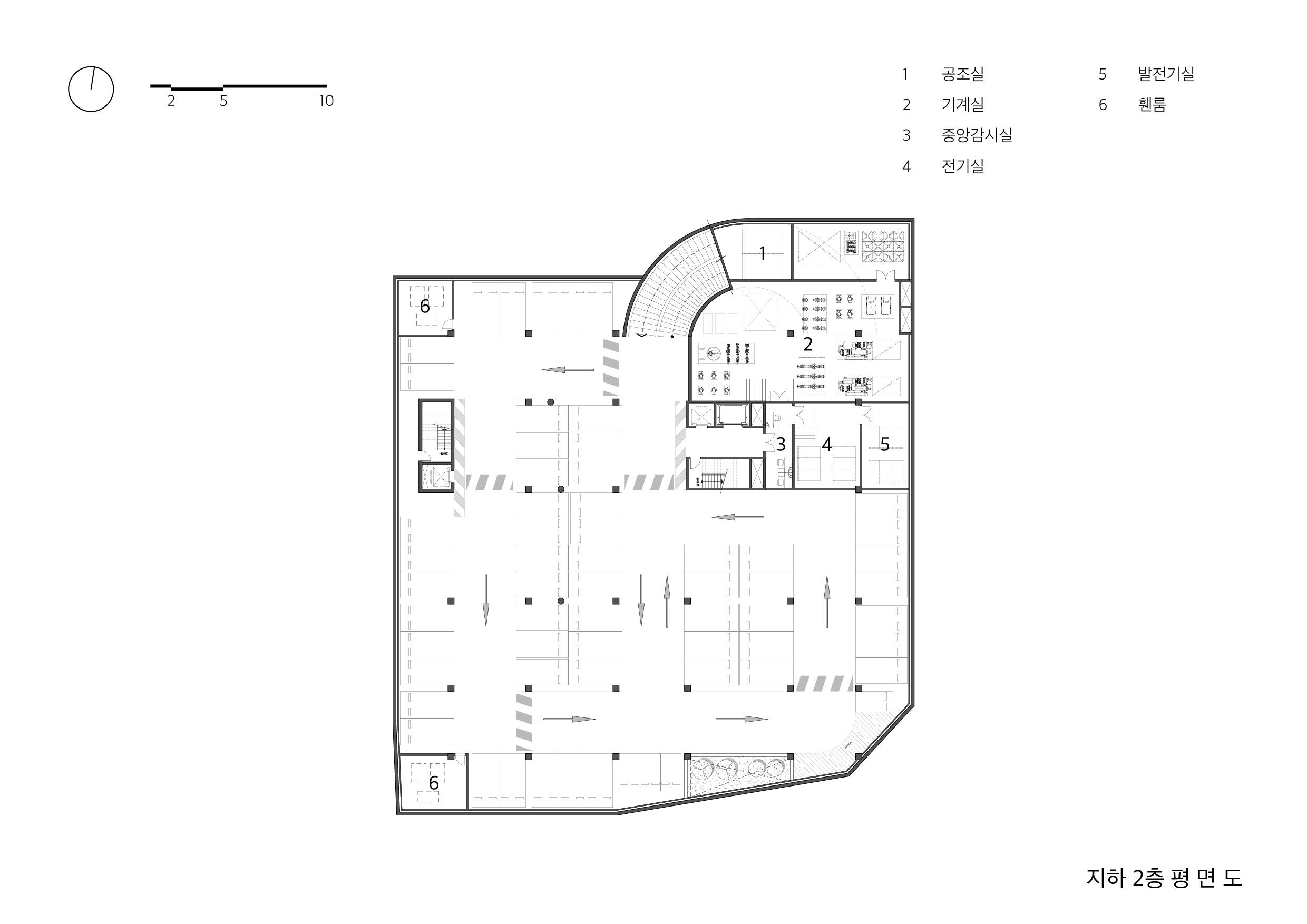
  • 규모
    • 지하2층/지상 5층
  • 구조
    • 철근콘크리트구조
  • 외부마감재
    • 산화스테인리스, 화강석, 알루미늄루버, 로이복층유리, 전돌타일, 노출콘크리트
  • 설계기간
    • 2024. 04
  • 대지위치
    • 전북 전주시 경원동 3가 30-1, 30-5~8
  • 주요용도
    • 문화 및 집회시설
  • 대지면적
    • 2,829.80㎡
  • 건축면적
    • 1,153.64㎡
  • 연면적
    • 9,298.16㎡
  • 규모
    • 지하2층/지상 5층
  • 구조
    • 철근콘크리트구조
  • 외부마감재
    • 산화스테인리스, 화강석, 알루미늄루버, 로이복층유리, 전돌타일, 노출콘크리트
  • 설계기간
    • 2024. 04