익산 지식산업센터 건립사업 현상

2025
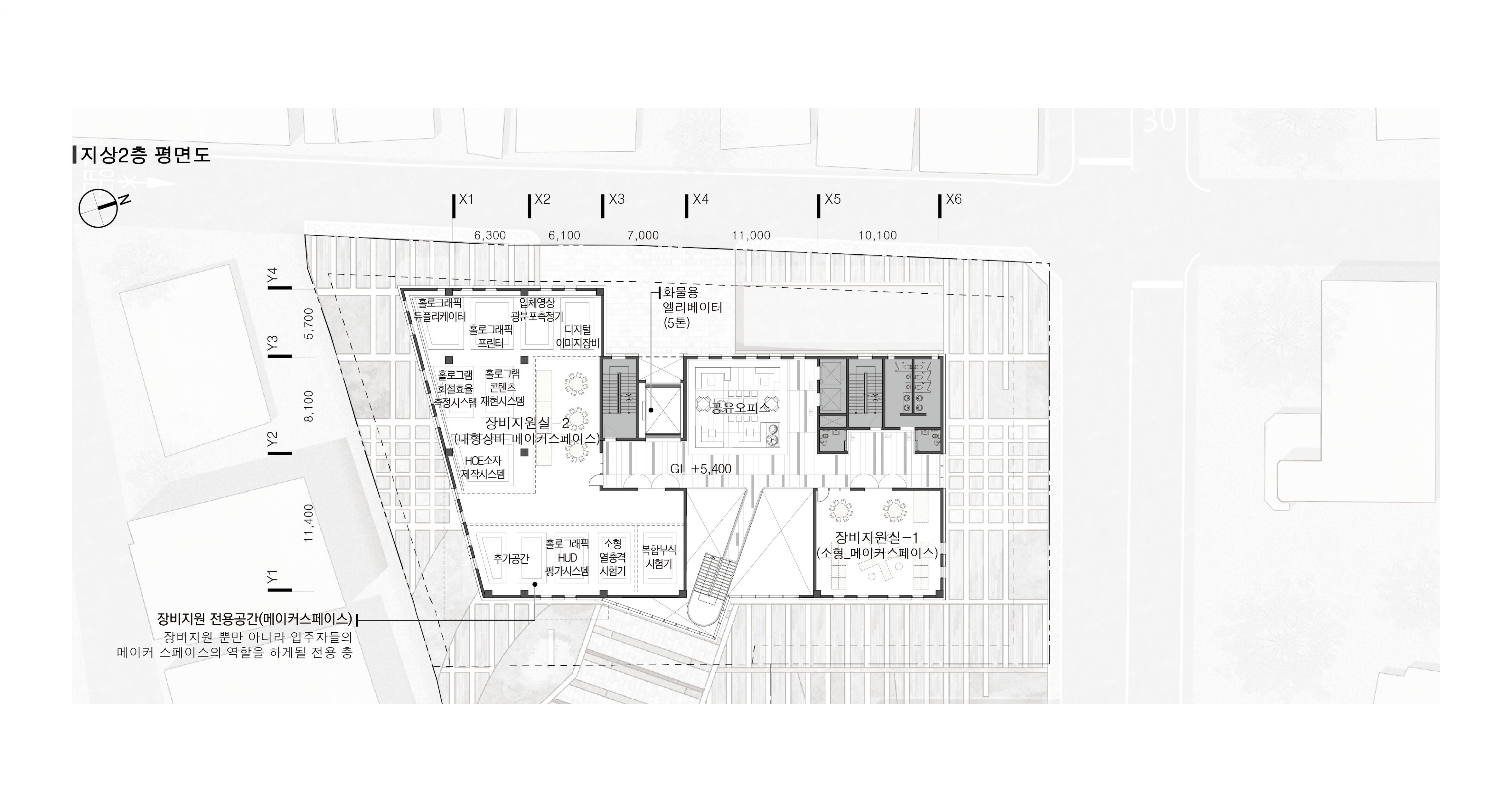
  • 대지위치 전북특별자치도 익산시 길산동 1, 1-1
  • 대지면적 3,752.10㎡
  • 건축면적 1,176.98㎡
  • 연면적 7,523.42㎡
  • 규모 지하2층, 지상7층
  • 구조 철근콘크리트구조
  • 외부마감재 세라믹패널, 석재패널, 로이복층유리
  • 설계기간 2025.09
  • 대지위치 전북특별자치도 익산시 길산동 1, 1-1
  • 대지면적 3,752.10㎡
  • 건축면적 1,176.98㎡
  • 연면적 7,523.42㎡
  • 규모 지하2층, 지상7층
  • 구조 철근콘크리트구조
  • 외부마감재 세라믹패널, 석재패널, 로이복층유리
  • 설계기간 2025.09