오송초 본관 증·개축 및 급식시설 현대화공사 현상

2024
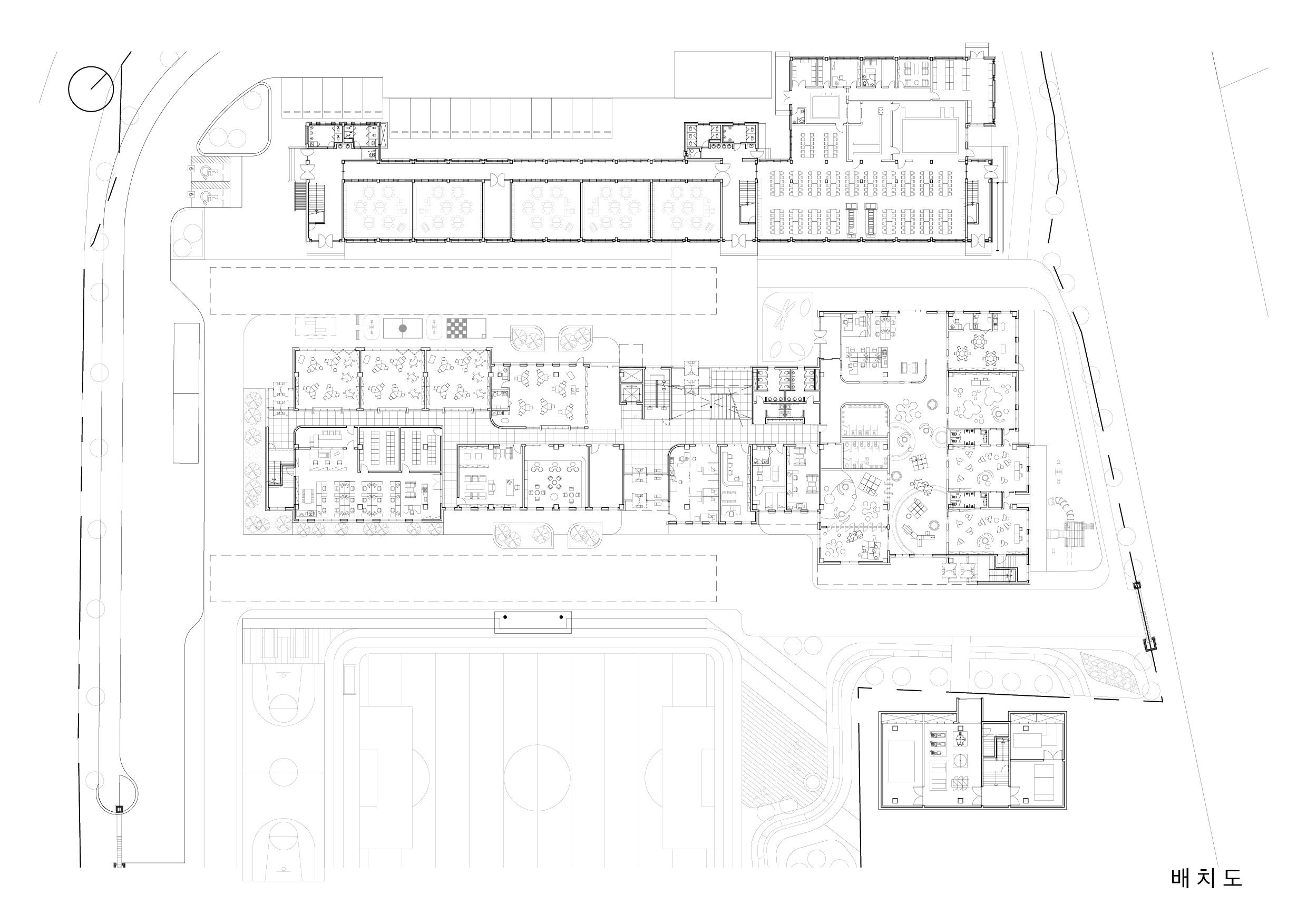
  • 대지위치
    • 충청북도 청주시 흥덕구 오송읍 오송리 60-1 번지 외 4필지
  • 주요용도
    • 교육시설
  • 건축면적
    • 4,473.30㎡
  • 연면적
    • 10,821.86㎡
  • 규모
    • 지하1층, 지상4층
  • 구조
    • 철근콘크리트구조
  • 외부마감재
    • 라임계 천연몰탈, 점토벽돌, 로이복층유리, 징크판넬
  • 설계기간
    • 2024. 04
  • 대지위치
    • 충청북도 청주시 흥덕구 오송읍 오송리 60-1 번지 외 4필지
  • 주요용도
    • 교육시설
  • 건축면적
    • 4,473.30㎡
  • 연면적
    • 10,821.86㎡
  • 규모
    • 지하1층, 지상4층
  • 구조
    • 철근콘크리트구조
  • 외부마감재
    • 라임계 천연몰탈, 점토벽돌, 로이복층유리, 징크판넬
  • 설계기간
    • 2024. 04