안영생활체육시설단지 실내테니스동 현상

2025
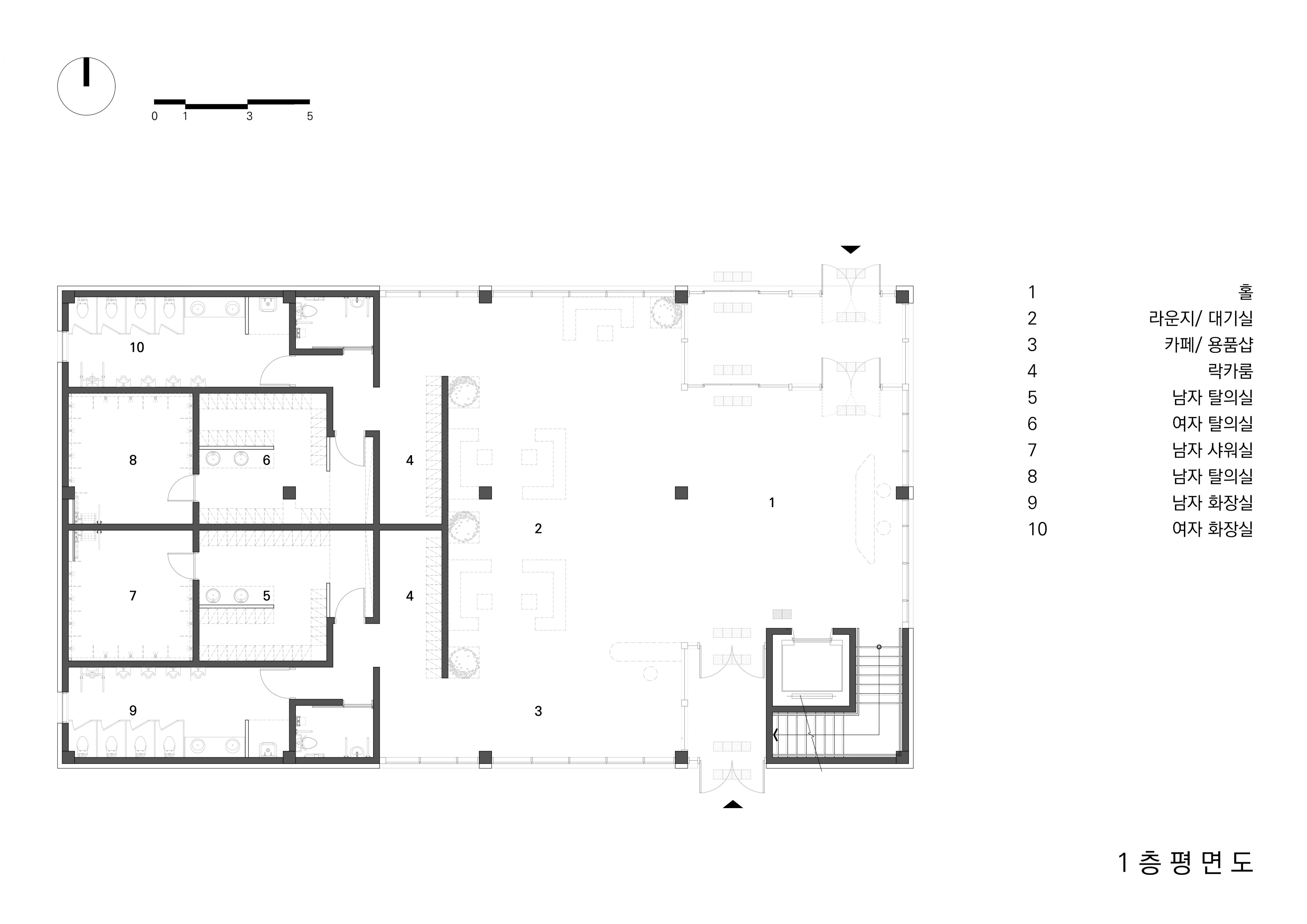
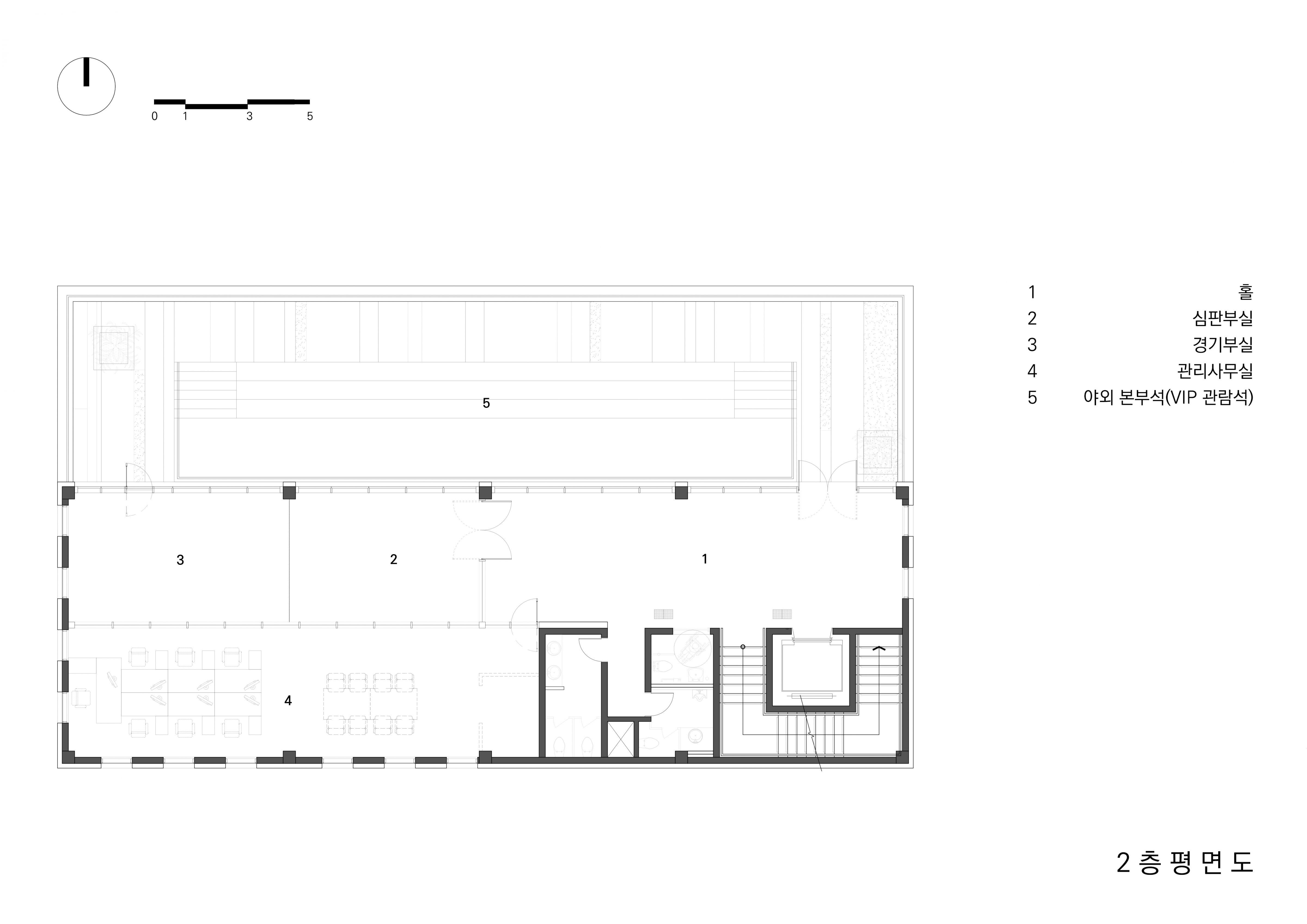
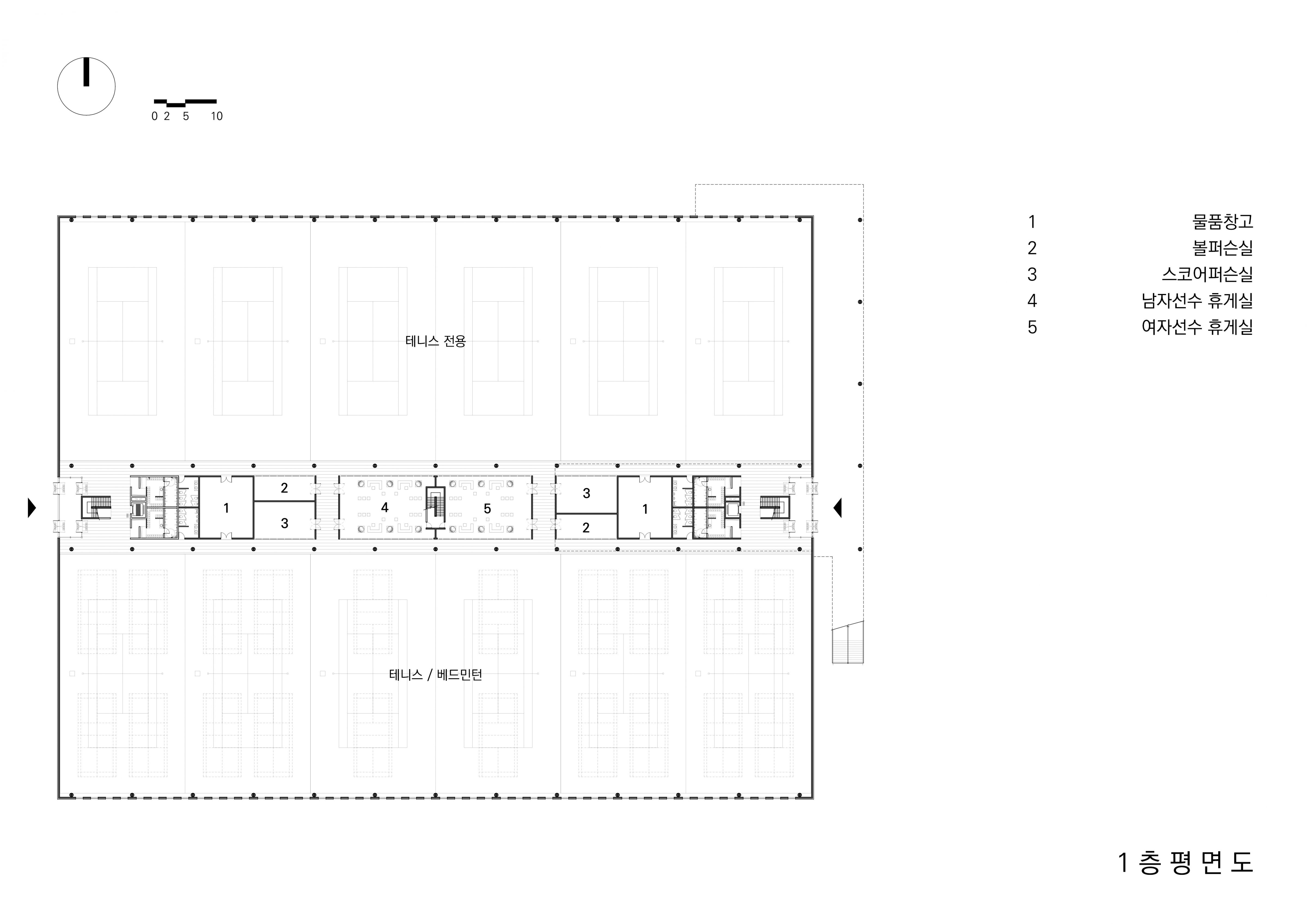
  • 대지위치  대전광역시 중구 안영동 400-1 번지 일원
  • 주요용도  체육시설
  • 대지면적  75,633.90㎡
  • 건축면적  11,623.66㎡
  • 연면적  12,504.71㎡
  • 규모  지상2층
  • 구조  철골철근콘크리트구조, 철골구조
  • 외부마감재  브릭판넬, 브릿글라스, 금속판넬, 목재판넬, 로이복층유리
  • 설계기간  2024.11
  • 대지위치  대전광역시 중구 안영동 400-1 번지 일원
  • 주요용도  체육시설
  • 대지면적  75,633.90㎡
  • 건축면적  11,623.66㎡
  • 연면적  12,504.71㎡
  • 규모  지상2층
  • 구조  철골철근콘크리트구조, 철골구조
  • 외부마감재  브릭판넬, 브릿글라스, 금속판넬, 목재판넬, 로이복층유리
  • 설계기간  2024.11