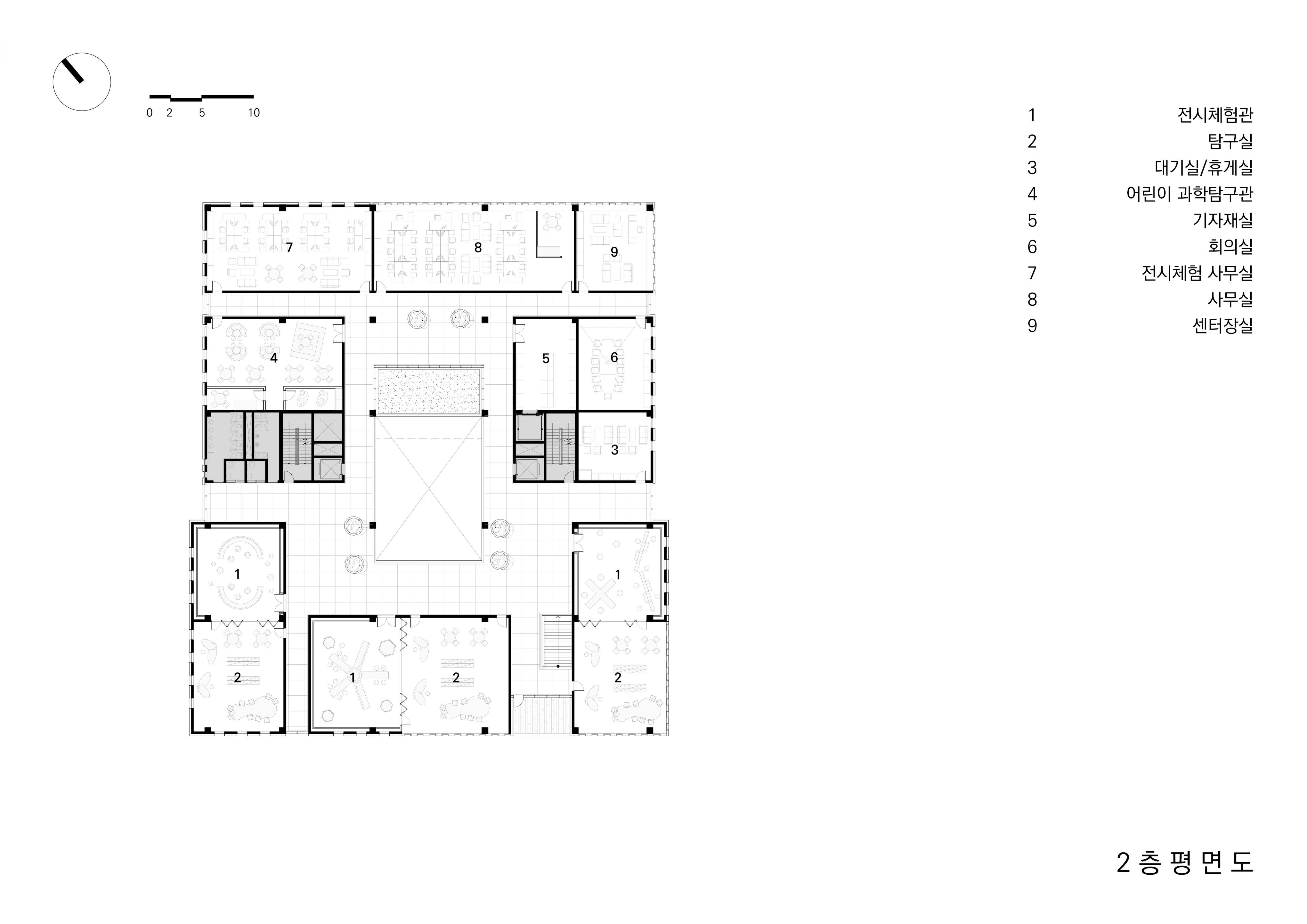
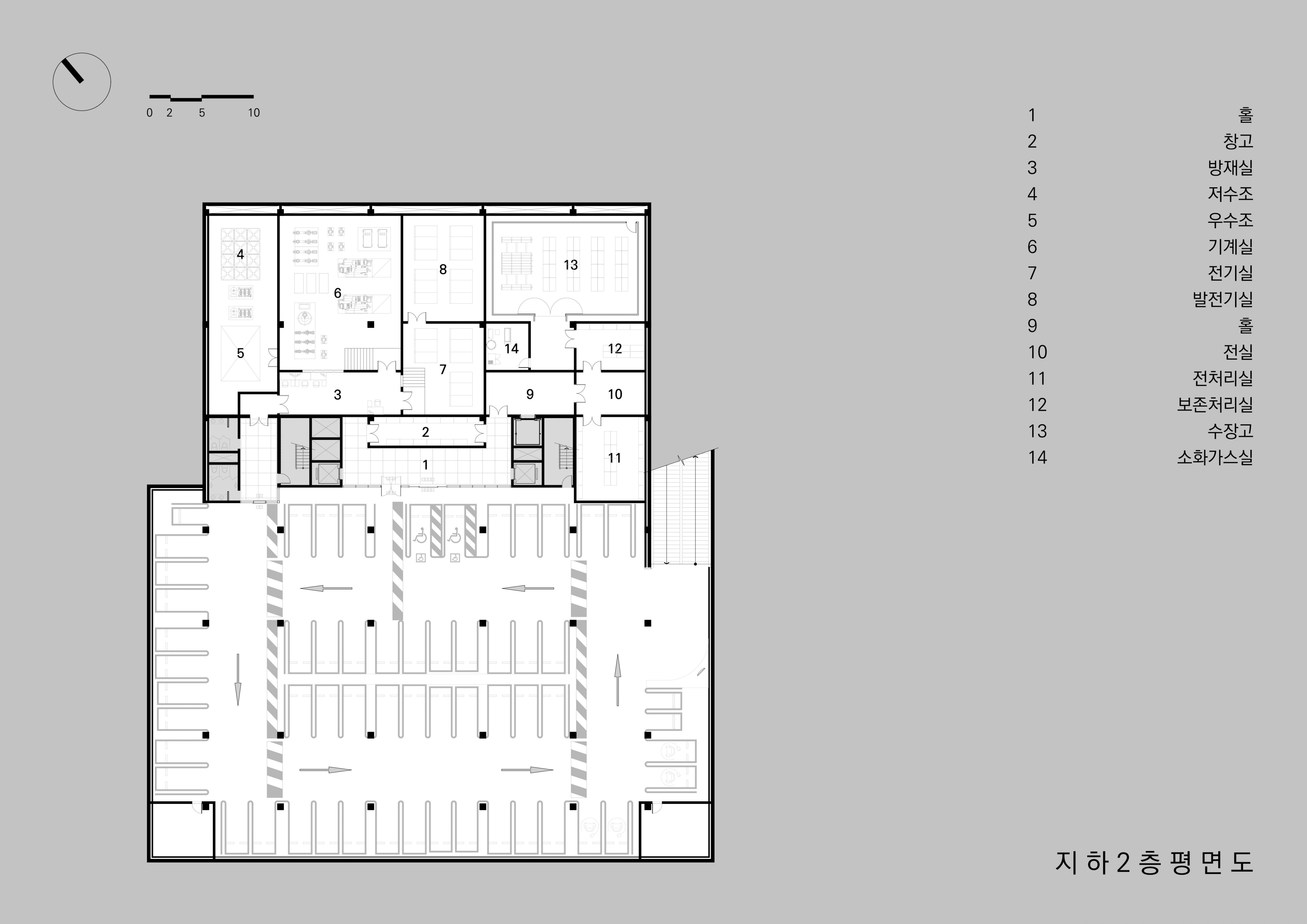
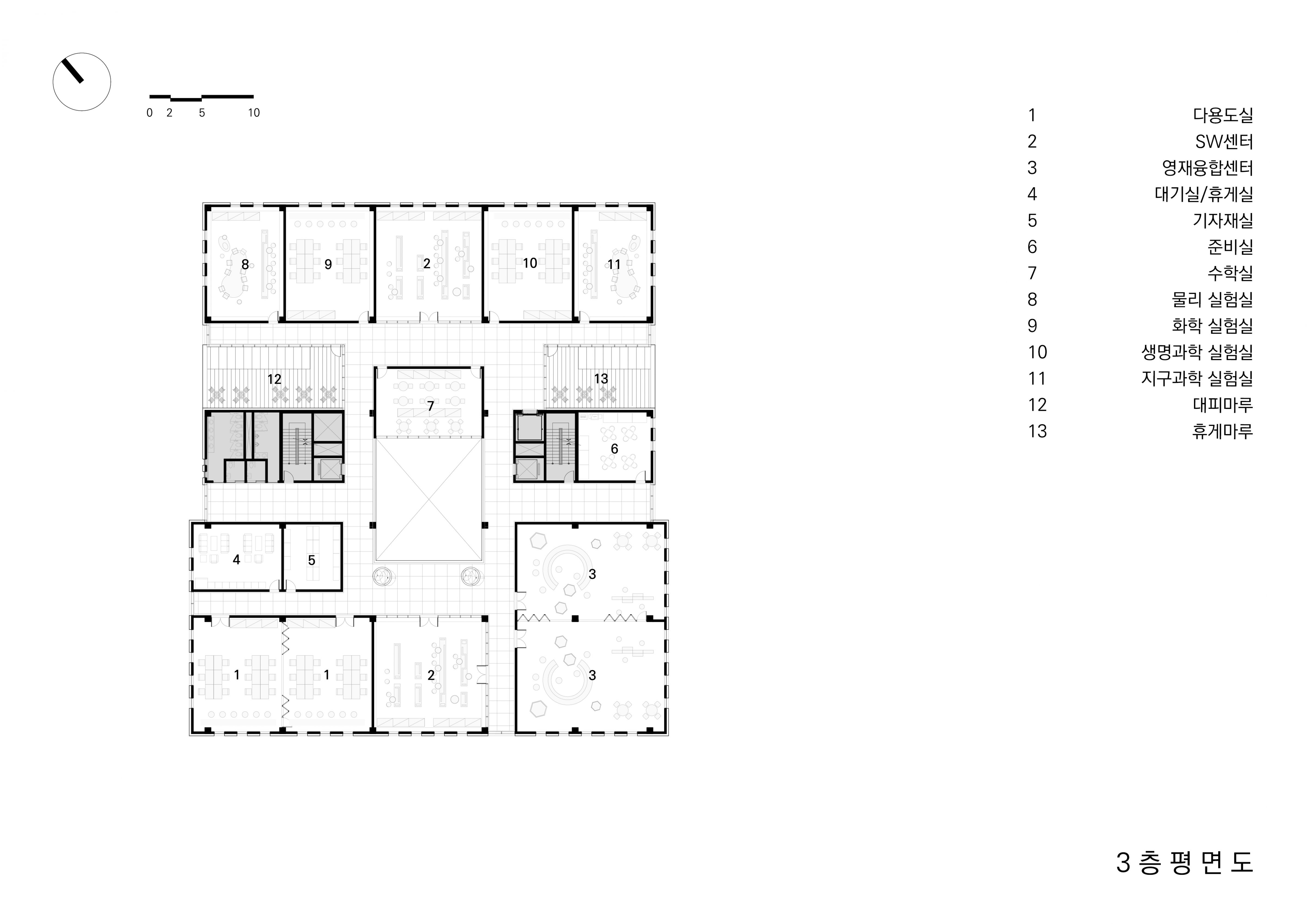
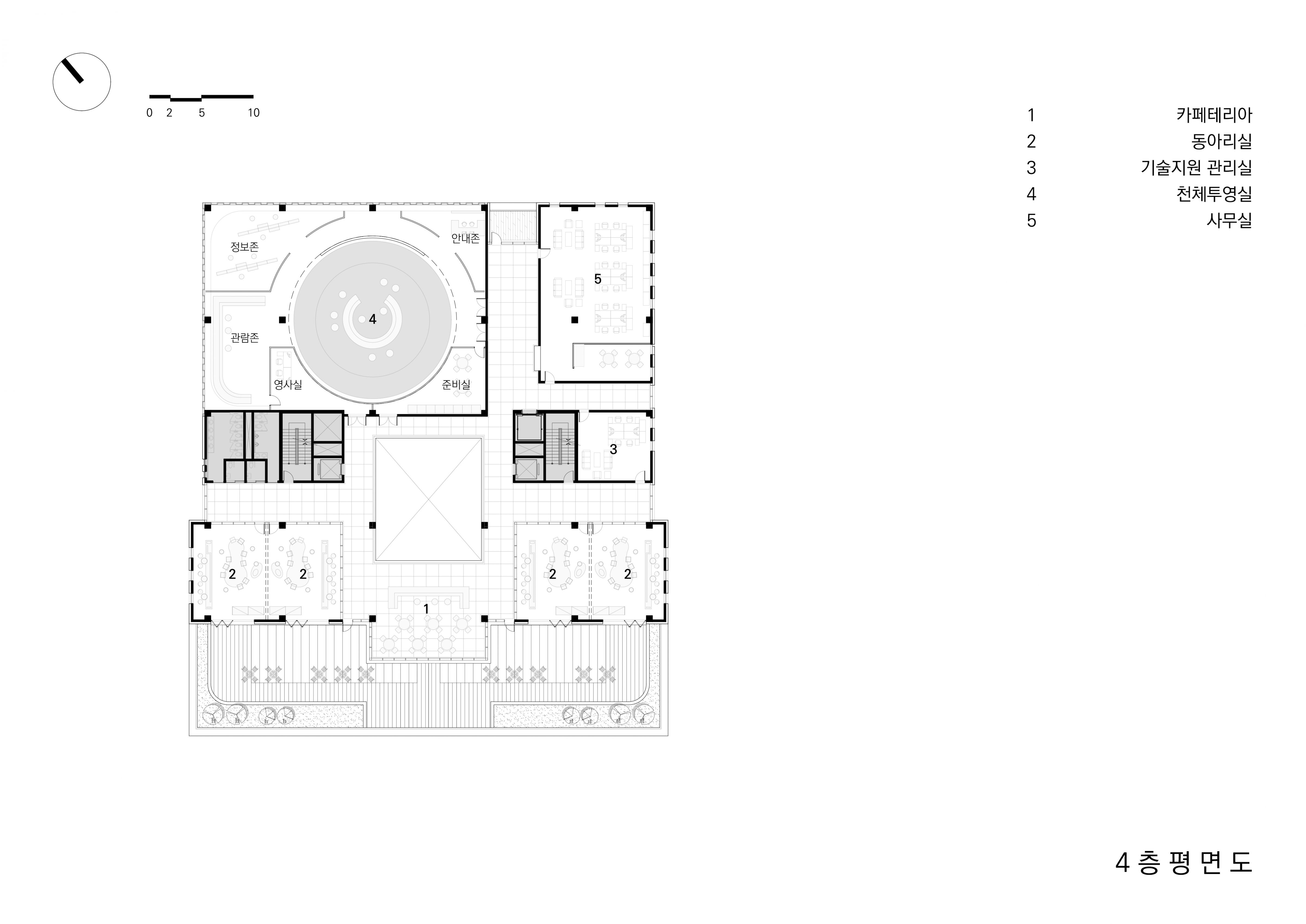
세종시 과학문화센터 건립사업 현상

2025
  • 대지위치  세종특별자치 합강동 81-1
  • 주요용도  문화 및 집회시설
  • 대지면적  9,444㎡
  • 건축면적  2,236.92㎡
  • 연면적  11,973.23㎡
  • 규모  지하 2층/지상 4층
  • 구조 철골철근콘크리트조
  • 외부마감재  석재패널, 알루미늄루버, 유글라스, 로이복층유리, 엘이디유닛
  • 설계기간 2024.05
  • 대지위치  세종특별자치 합강동 81-1
  • 주요용도  문화 및 집회시설
  • 대지면적  9,444㎡
  • 건축면적  2,236.92㎡
  • 연면적  11,973.23㎡
  • 규모  지하 2층/지상 4층
  • 구조 철골철근콘크리트조
  • 외부마감재  석재패널, 알루미늄루버, 유글라스, 로이복층유리, 엘이디유닛
  • 설계기간 2024.05