내수면 창업지원 비즈니스센터 건립사업 현상

2025
  • 대지위치 전북특별자치도 김제시 백산면                                            조종리 559-6 외 7필지
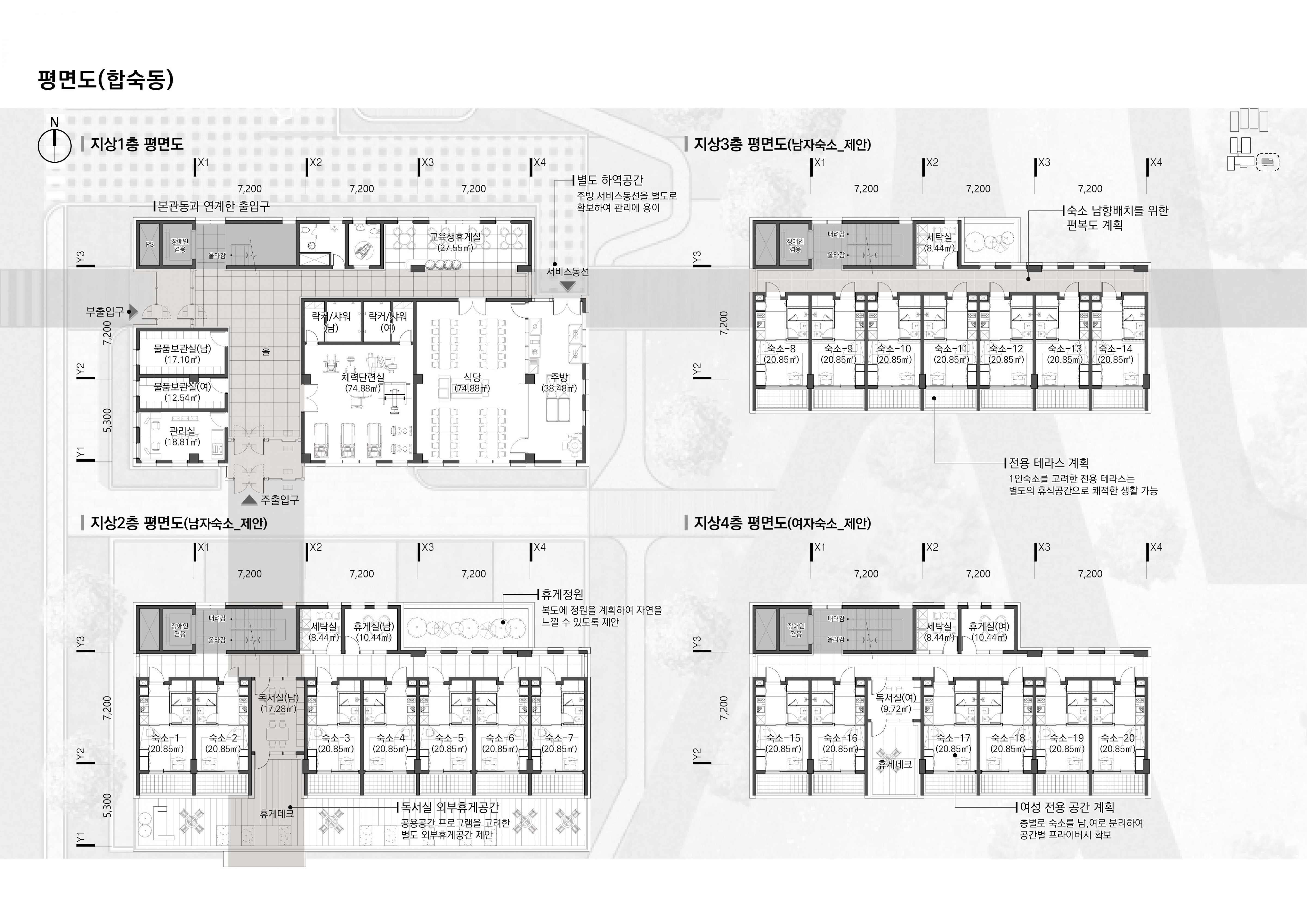
  • 주요용도 교육연구시설, 동식물관련시설
  • 대지면적 25,148.00㎡
  • 건축면적 7,417.98㎡
  • 연면적 9,675.34㎡
  • 규모 지하1층, 지상4층
  • 구조 철근콘크리트구조, 경량철골조
  • 외부마감재 세라믹패널, 알루미늄루버, 금속패널,                                  석재패널, 로이복층유리
  • 설계기간 2025.08
  • 대지위치 전북특별자치도 김제시 백산면                                            조종리 559-6 외 7필지
  • 주요용도 교육연구시설, 동식물관련시설
  • 대지면적 25,148.00㎡
  • 건축면적 7,417.98㎡
  • 연면적 9,675.34㎡
  • 규모 지하1층, 지상4층
  • 구조 철근콘크리트구조, 경량철골조
  • 외부마감재 세라믹패널, 알루미늄루버, 금속패널,                                  석재패널, 로이복층유리
  • 설계기간 2025.08