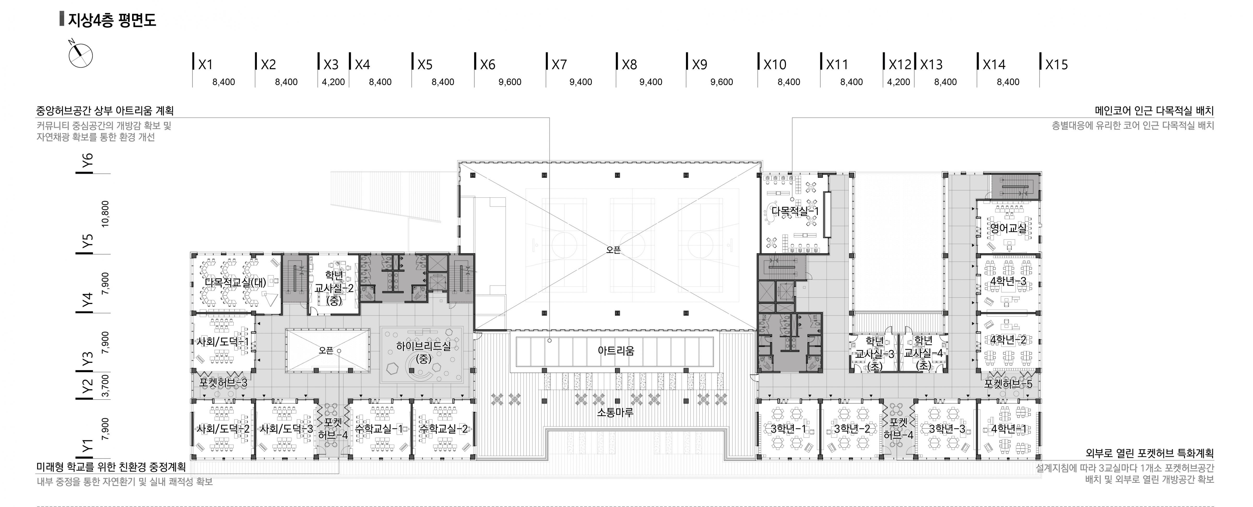
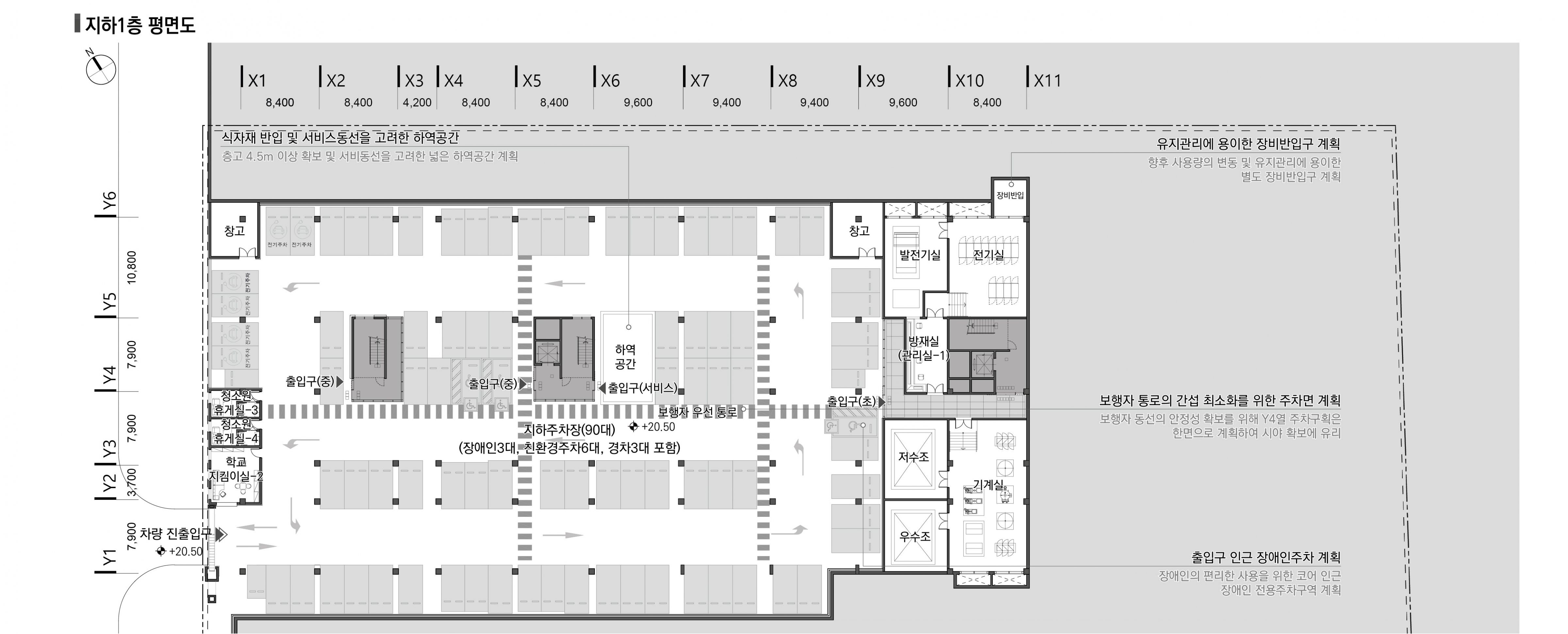
금송 초중학교 신축공사 현상

2025
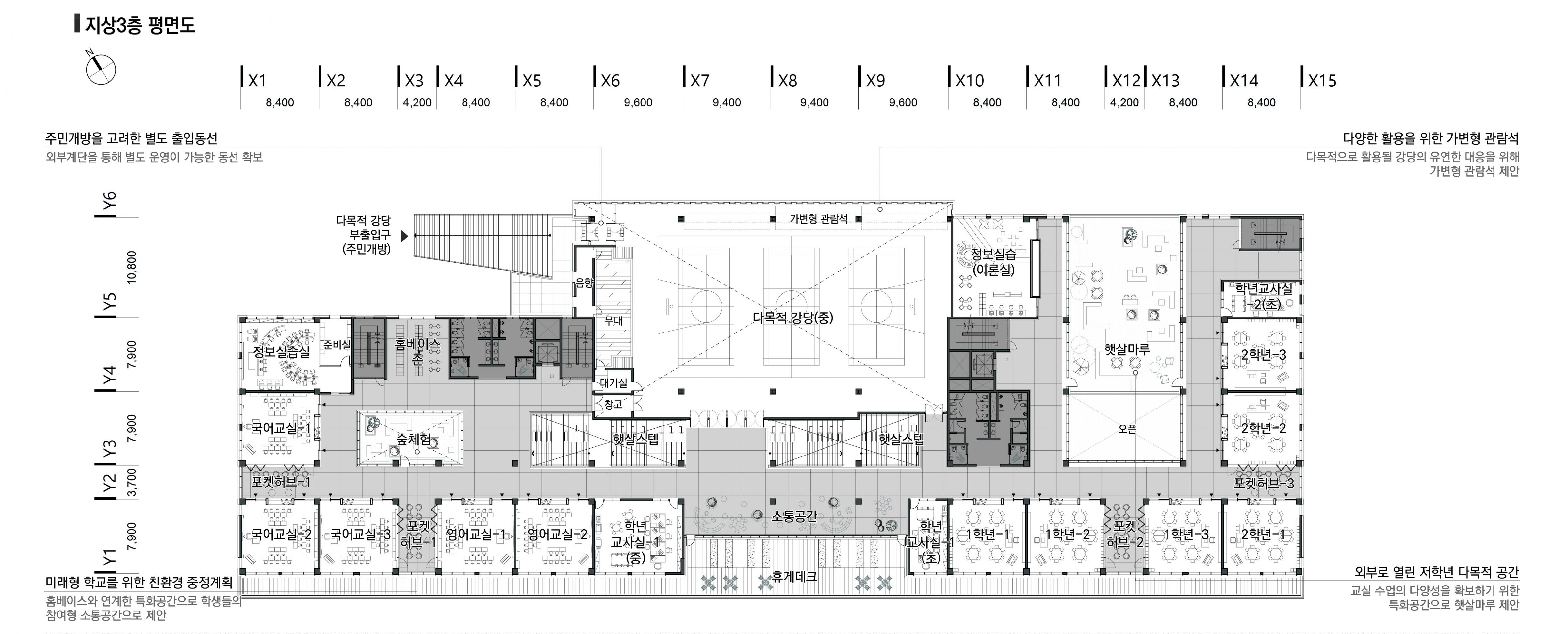
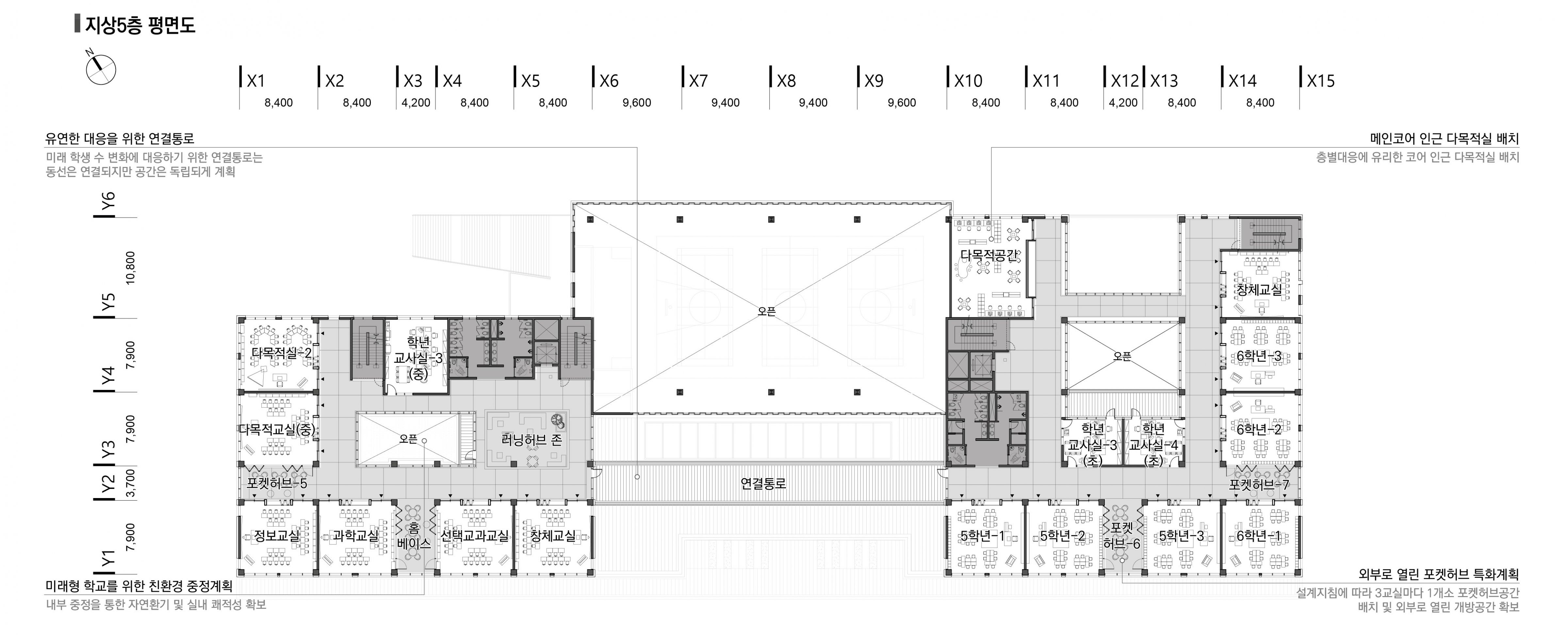
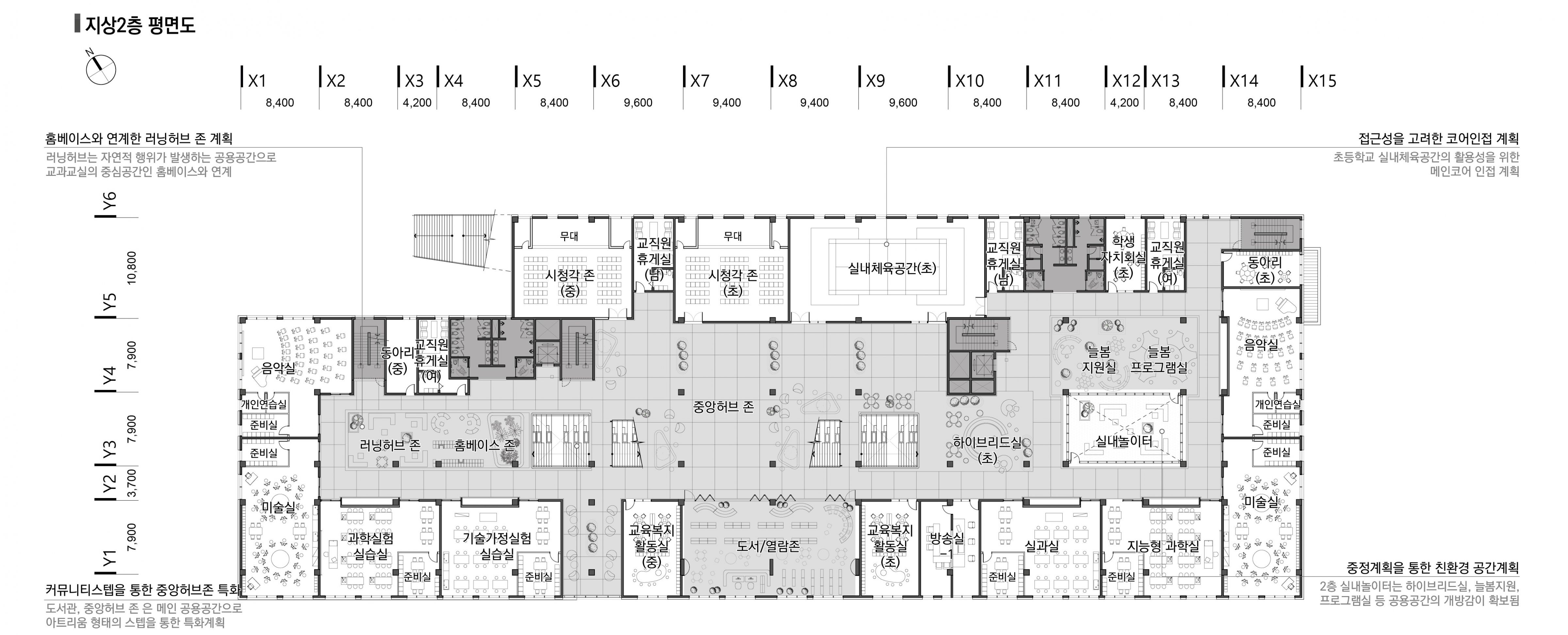
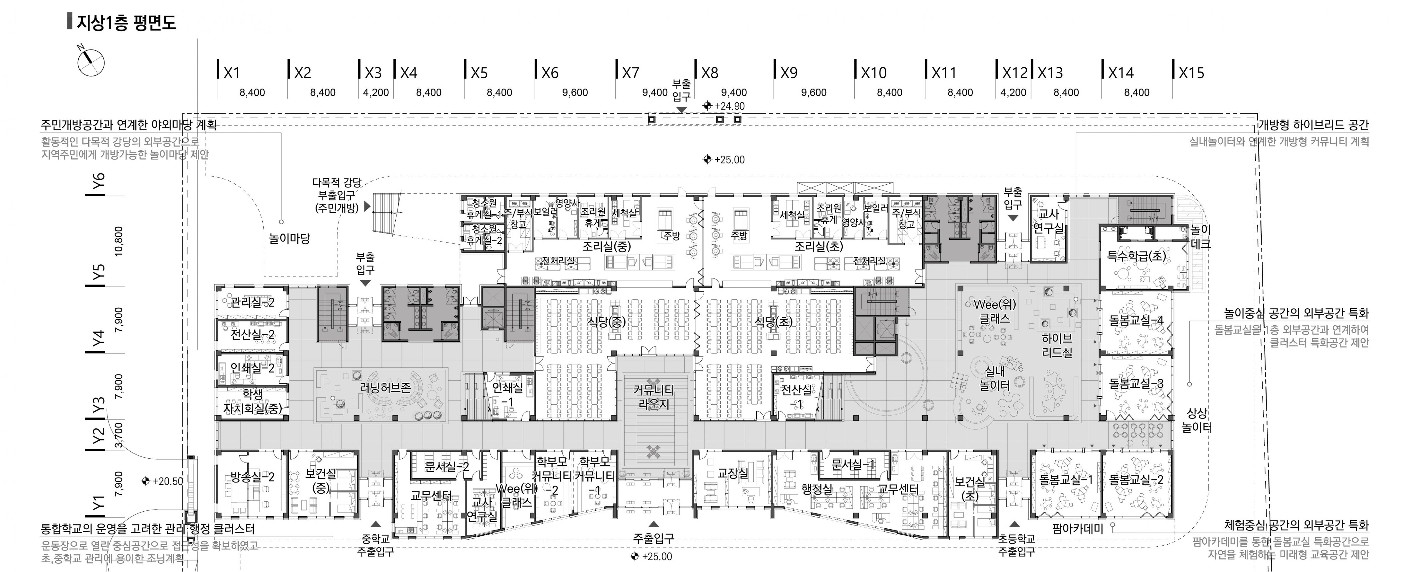
  • 대지위치 인천광역시 동구 창영동 110-10번지 일원
  • 주요용도 교육연구시설
  • 대지면적 12,000.00㎡
  • 건축면적 4,341.46㎡
  • 연면적 19,405.31㎡
  • 규모 지하1층, 지상5층
  • 구조 철근콘크리트구조
  • 외부마감재 로이복층유리, 점토벽돌, 세라믹패널,                                  지정금속, 유글라스
  • 설계기간 2025.04
  • 대지위치 인천광역시 동구 창영동 110-10번지 일원
  • 주요용도 교육연구시설
  • 대지면적 12,000.00㎡
  • 건축면적 4,341.46㎡
  • 연면적 19,405.31㎡
  • 규모 지하1층, 지상5층
  • 구조 철근콘크리트구조
  • 외부마감재 로이복층유리, 점토벽돌, 세라믹패널,                                  지정금속, 유글라스
  • 설계기간 2025.04