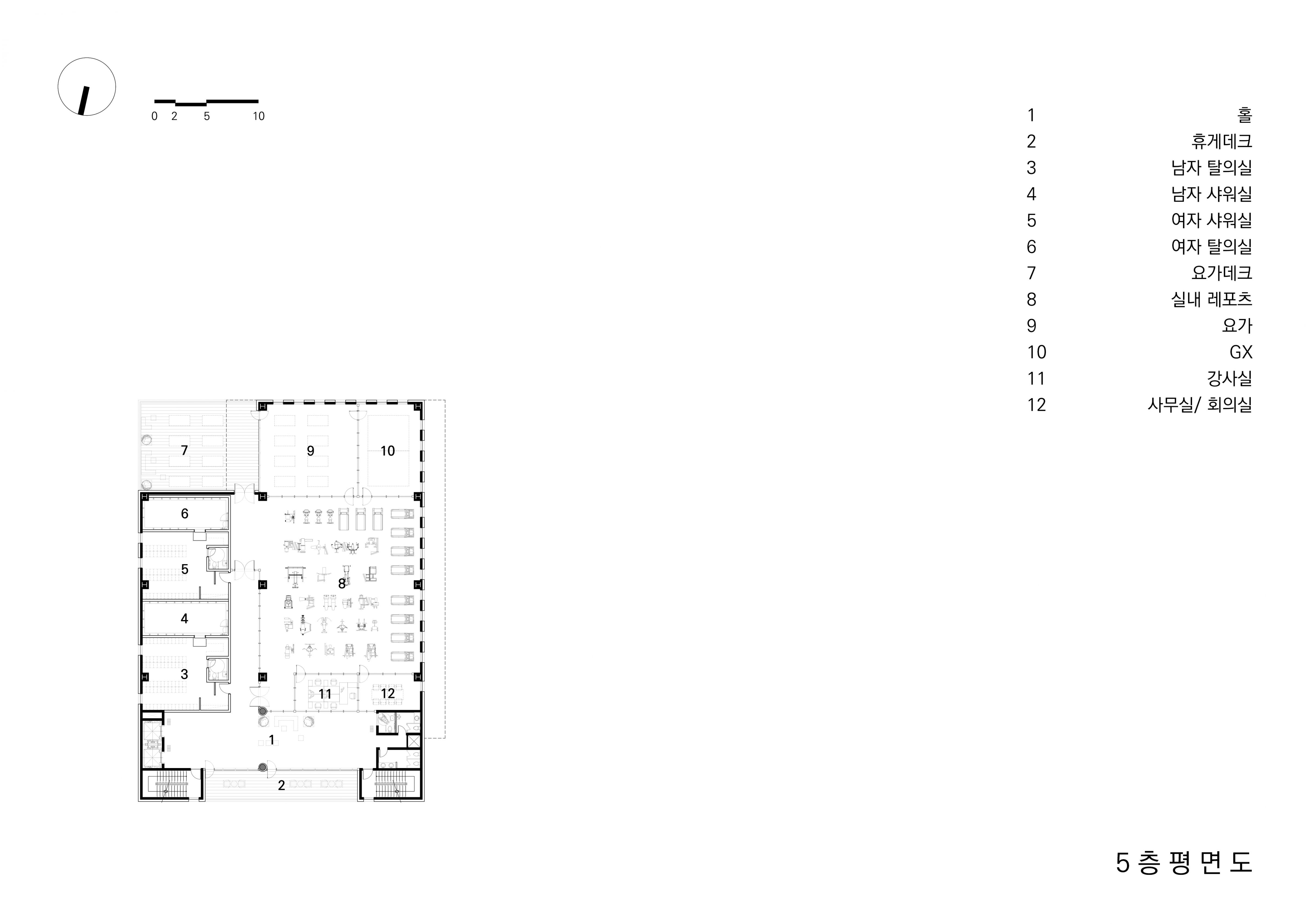
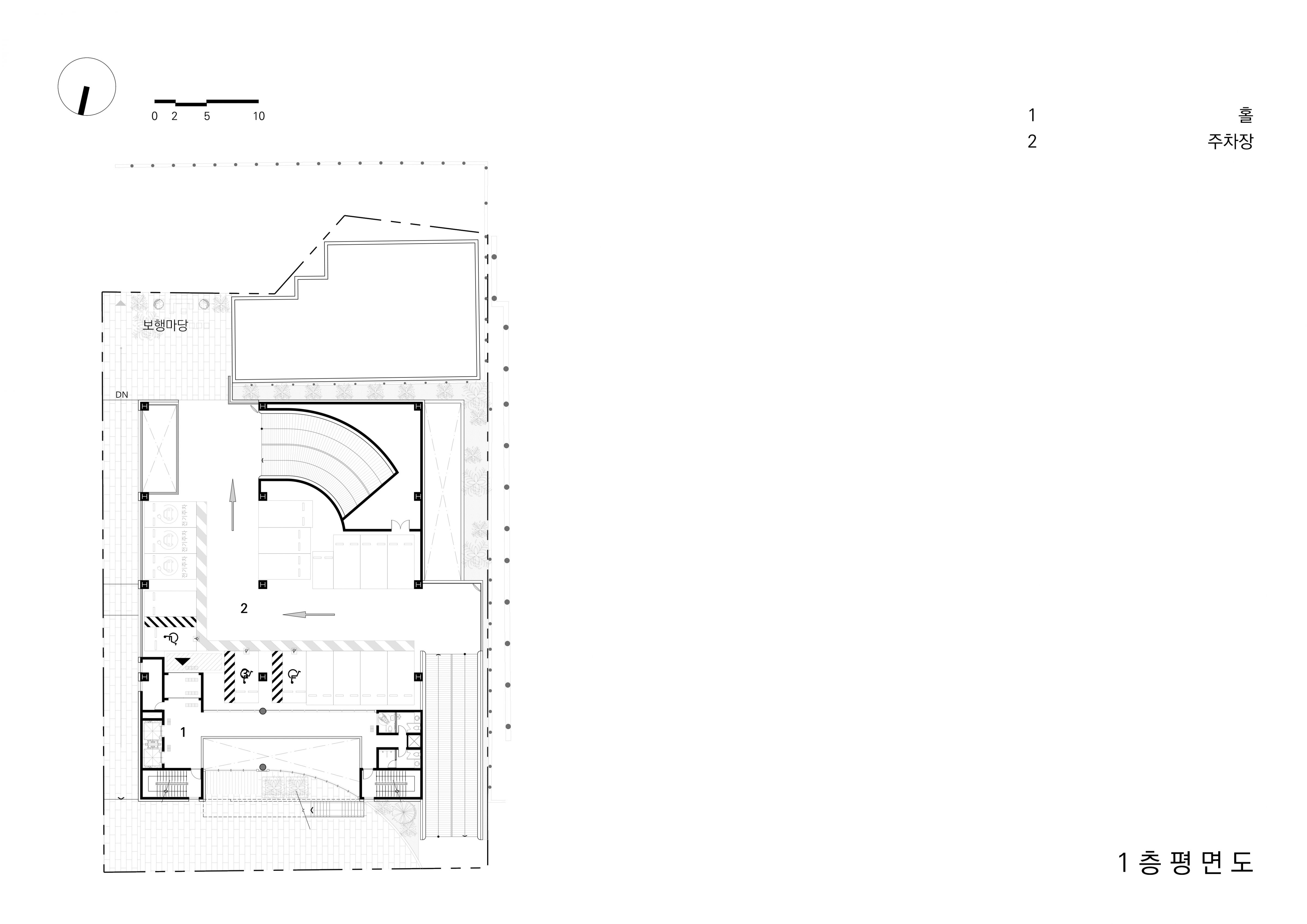
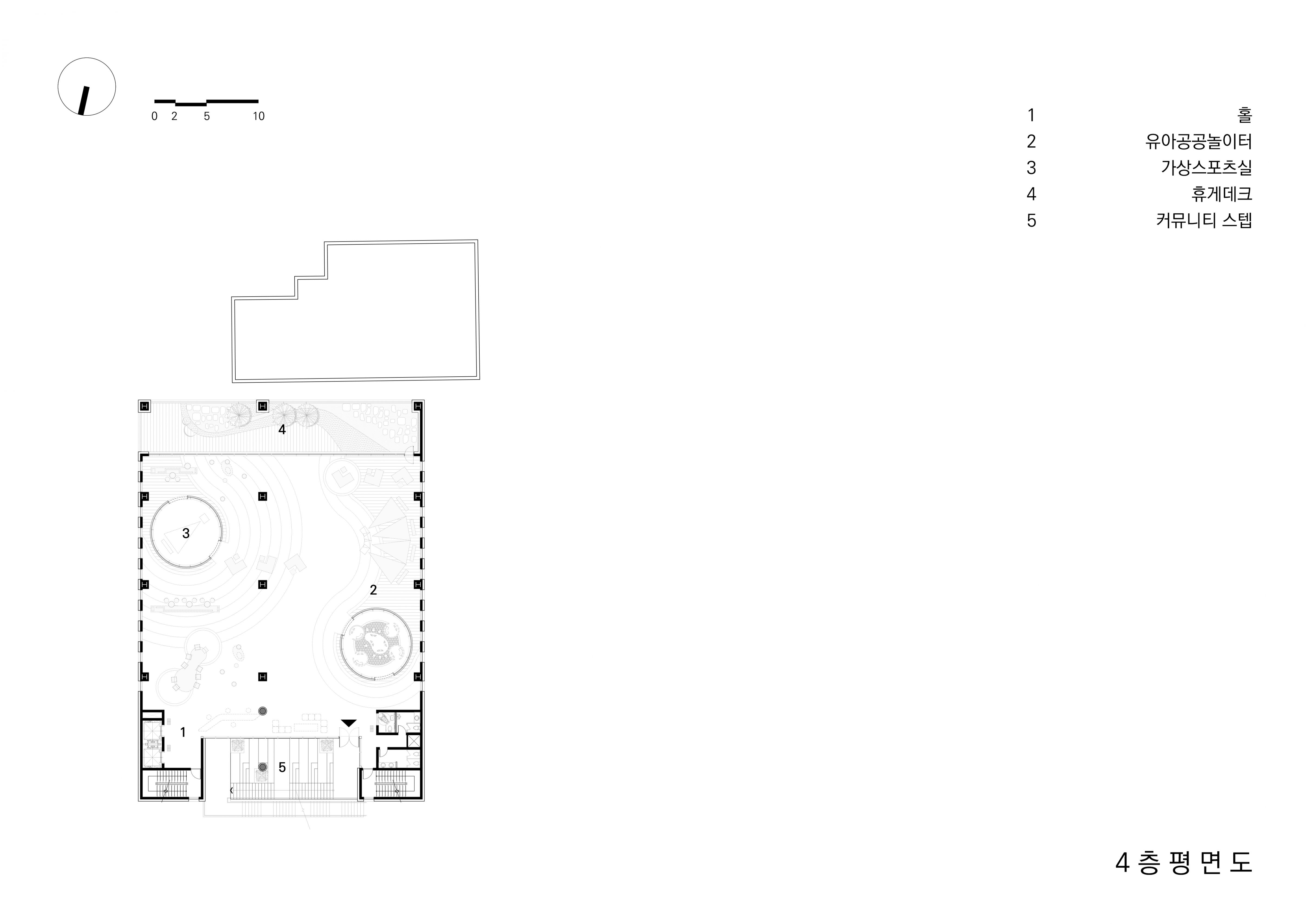
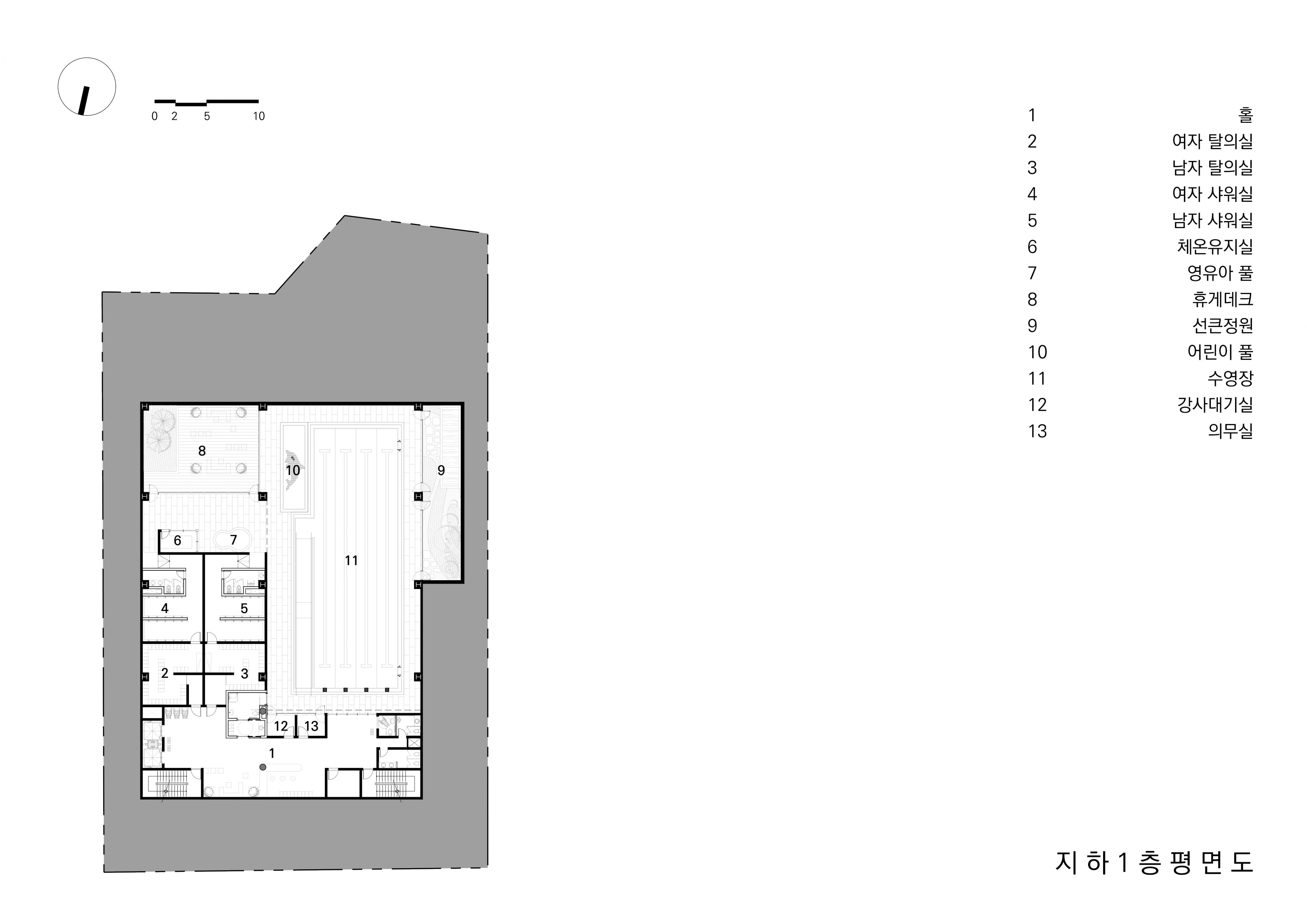
광명 시민건강 체육센터 건립사업 현상

2025
  • 대지위치  경기도 광명시 철산동 379번지
  • 주요용도  운동시설
  • 대지면적  2,181.3㎡
  • 건축면적  1,358.79㎡
  • 연면적  8,025.96㎡
  • 규모  지하 1층/ 지상 7층
  • 구조  철근콘크리트, 철골철근콘크리트구조
  • 외부마감재  금속메쉬, 지정석재, 로이복층유리, 알루미늄루버, 투명단열판넬
  • 설계기간  2024.11
  • 대지위치  경기도 광명시 철산동 379번지
  • 주요용도  운동시설
  • 대지면적  2,181.3㎡
  • 건축면적  1,358.79㎡
  • 연면적  8,025.96㎡
  • 규모  지하 1층/ 지상 7층
  • 구조  철근콘크리트, 철골철근콘크리트구조
  • 외부마감재  금속메쉬, 지정석재, 로이복층유리, 알루미늄루버, 투명단열판넬
  • 설계기간  2024.11