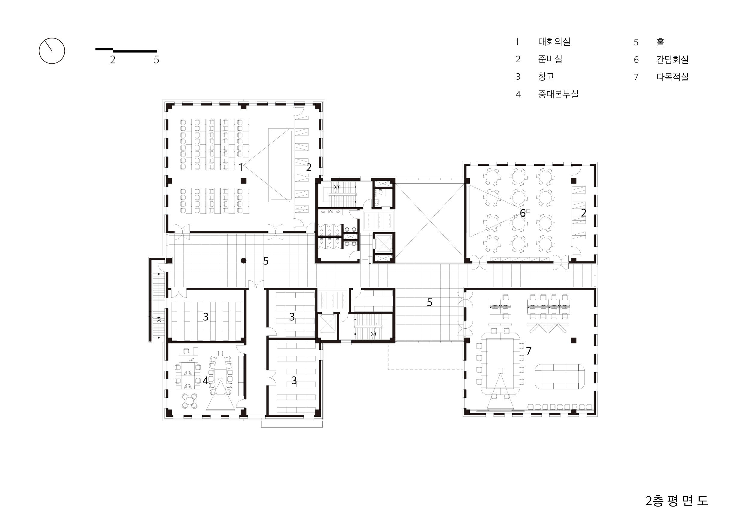
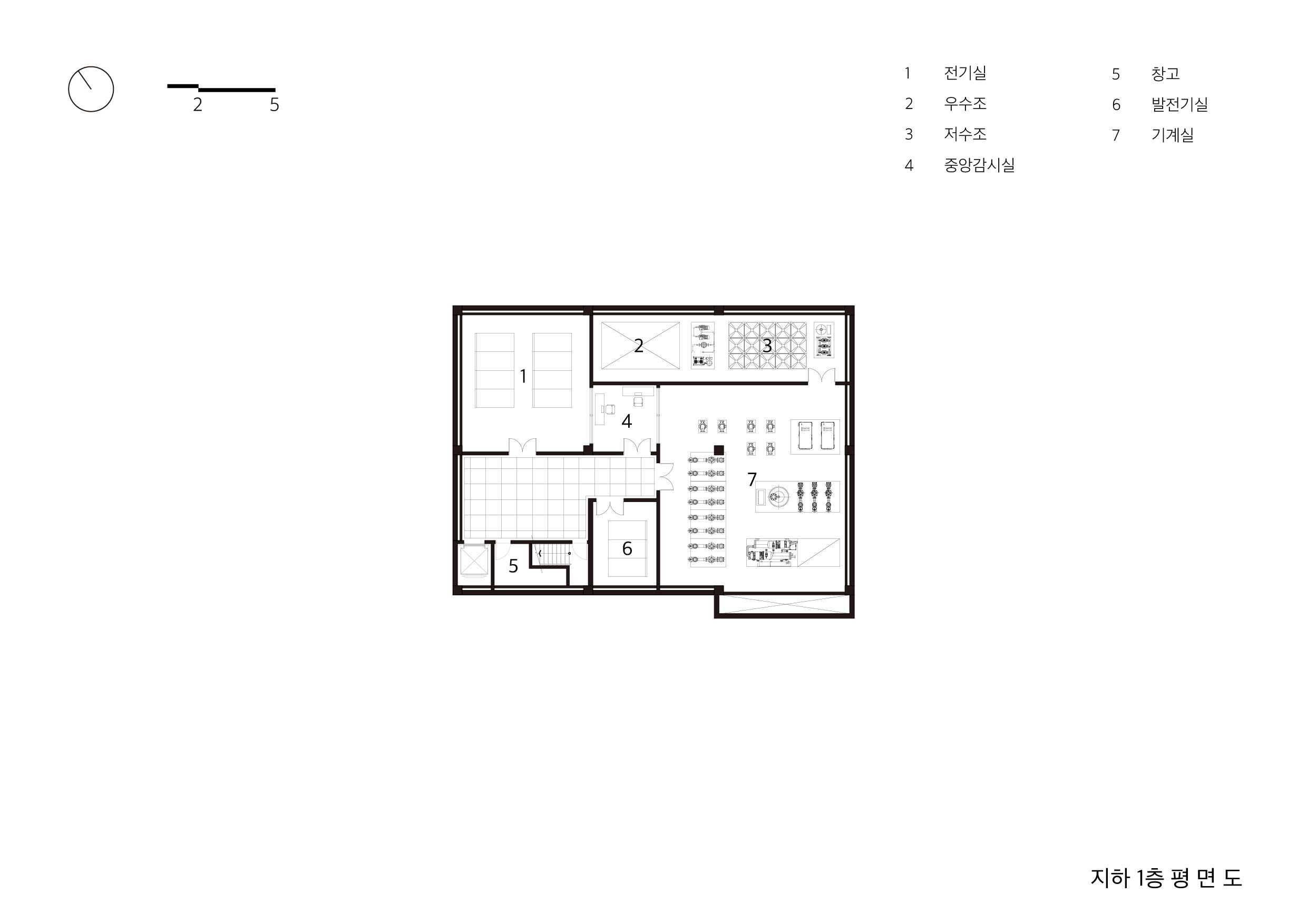
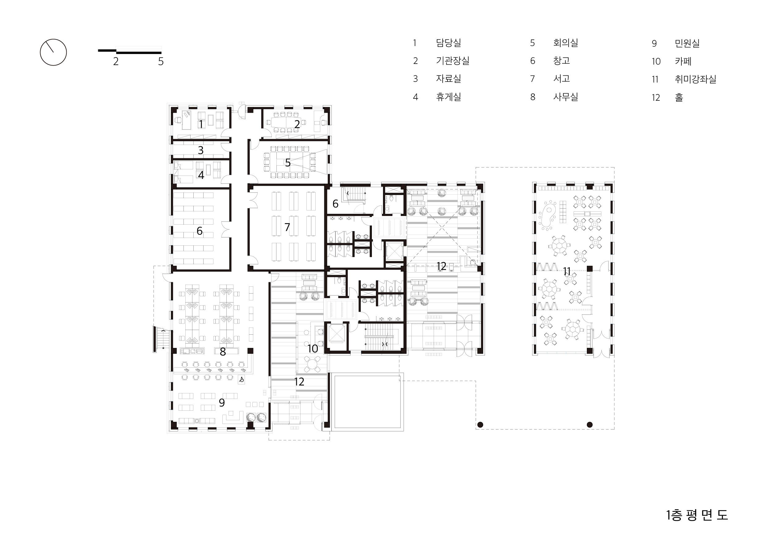
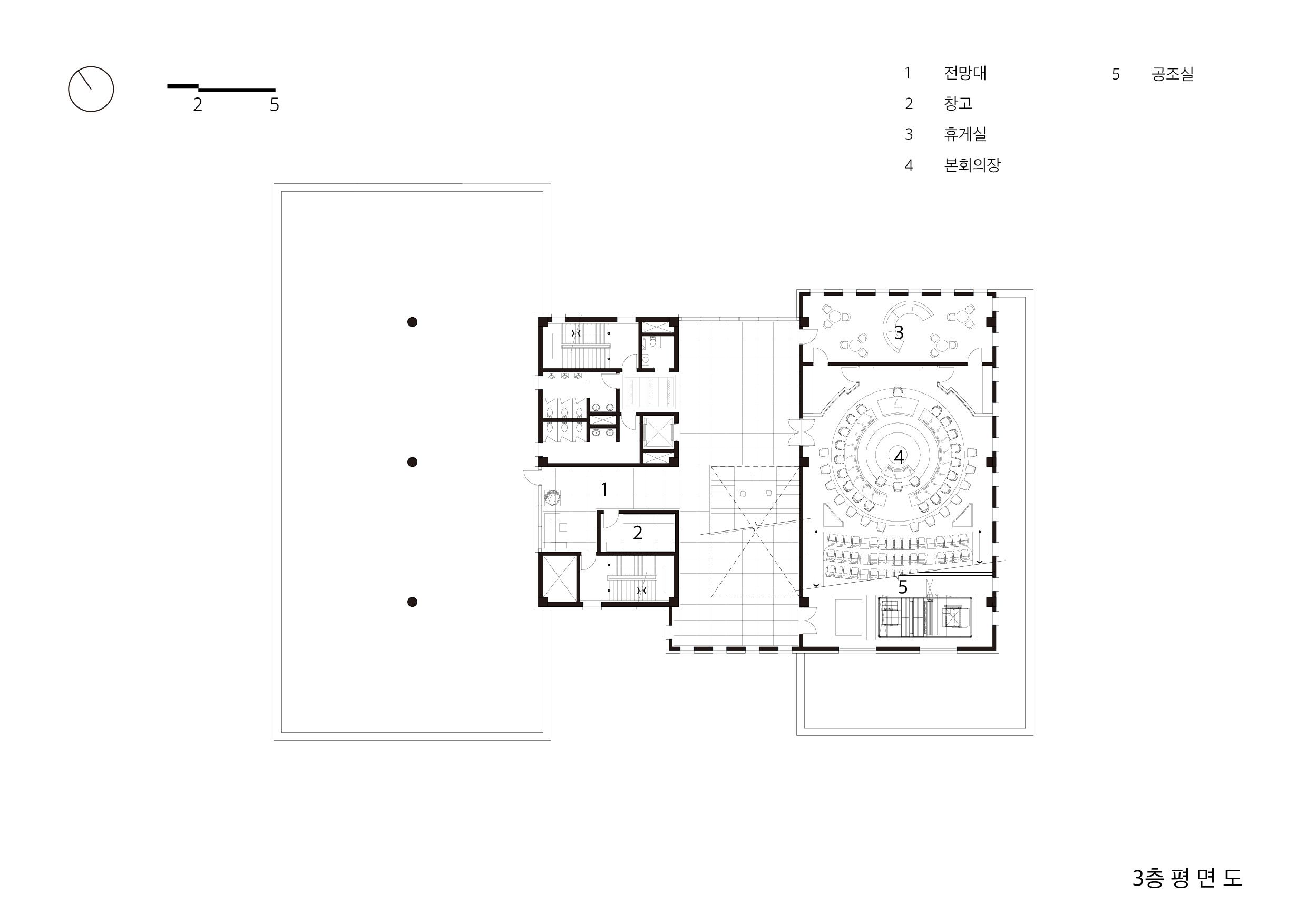
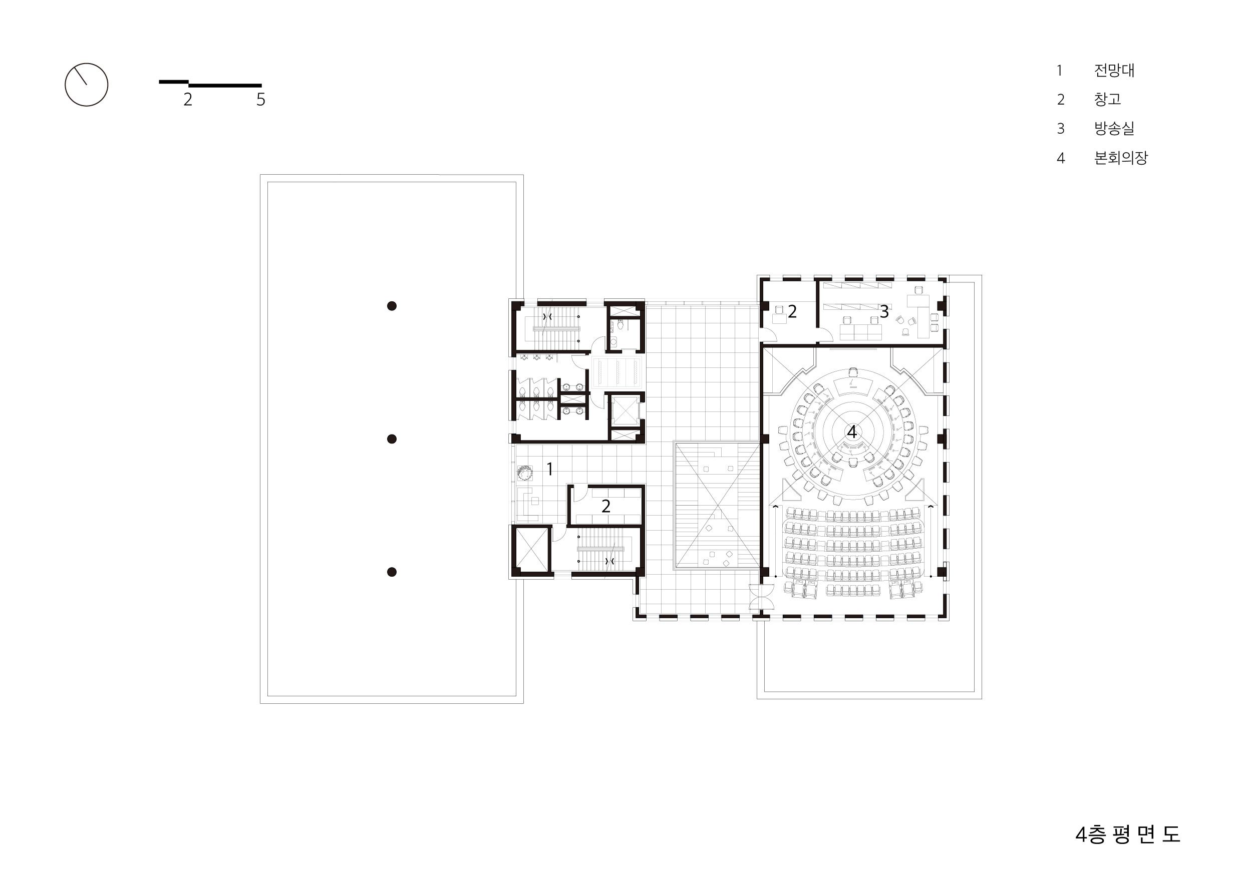
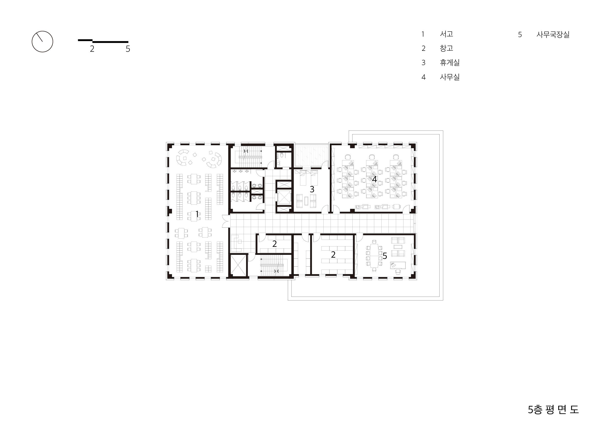
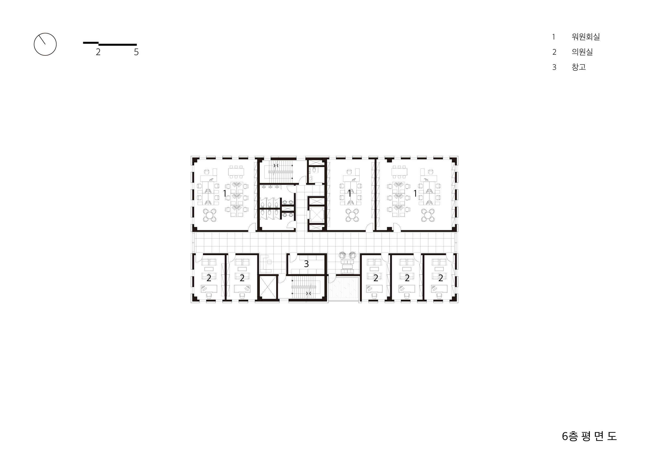
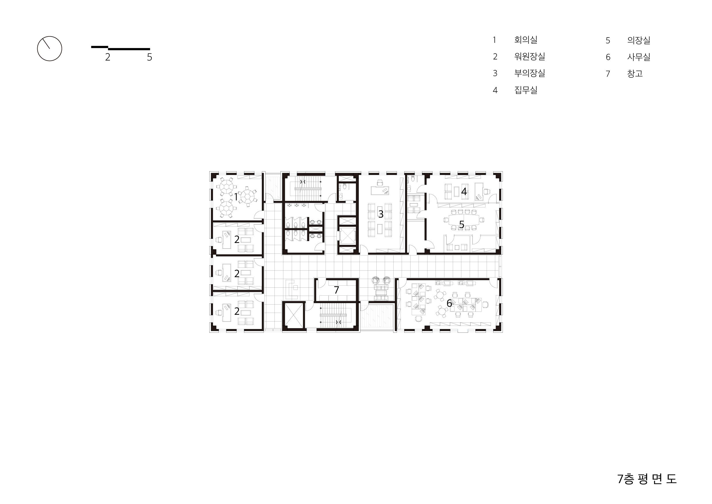
문경시의회 복합청사 현상

2024
  • 대지위치
    • 경상북도 문경시 모전동 59-2 일원
  • 주요용도
    • 행정복지센터, 시의회
  • 대지면적
    • 9,248.60㎡
  • 건축면적
    • 1,313.19㎡
  • 연면적
    • 4,685.98㎡
  • 규모
    • 지하1층, 지상7층
  • 구조
    • 철근콘크리트구조, 플랫슬라브 시스템
  • 외부마감재
    • 타일, 석재
  • 설계기간
    • 2024. 03
  • 대지위치
    • 경상북도 문경시 모전동 59-2 일원
  • 주요용도
    • 행정복지센터, 시의회
  • 대지면적
    • 9,248.60㎡
  • 건축면적
    • 1,313.19㎡
  • 연면적
    • 4,685.98㎡
  • 규모
    • 지하1층, 지상7층
  • 구조
    • 철근콘크리트구조, 플랫슬라브 시스템
  • 외부마감재
    • 타일, 석재
  • 설계기간
    • 2024. 03