동부권 전라남도 청년비전센터 건립사업 현상

2024
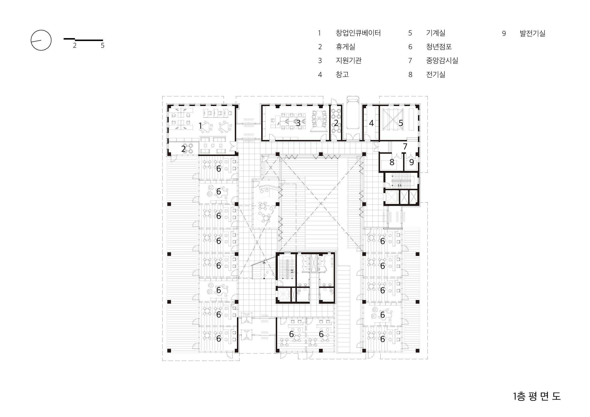
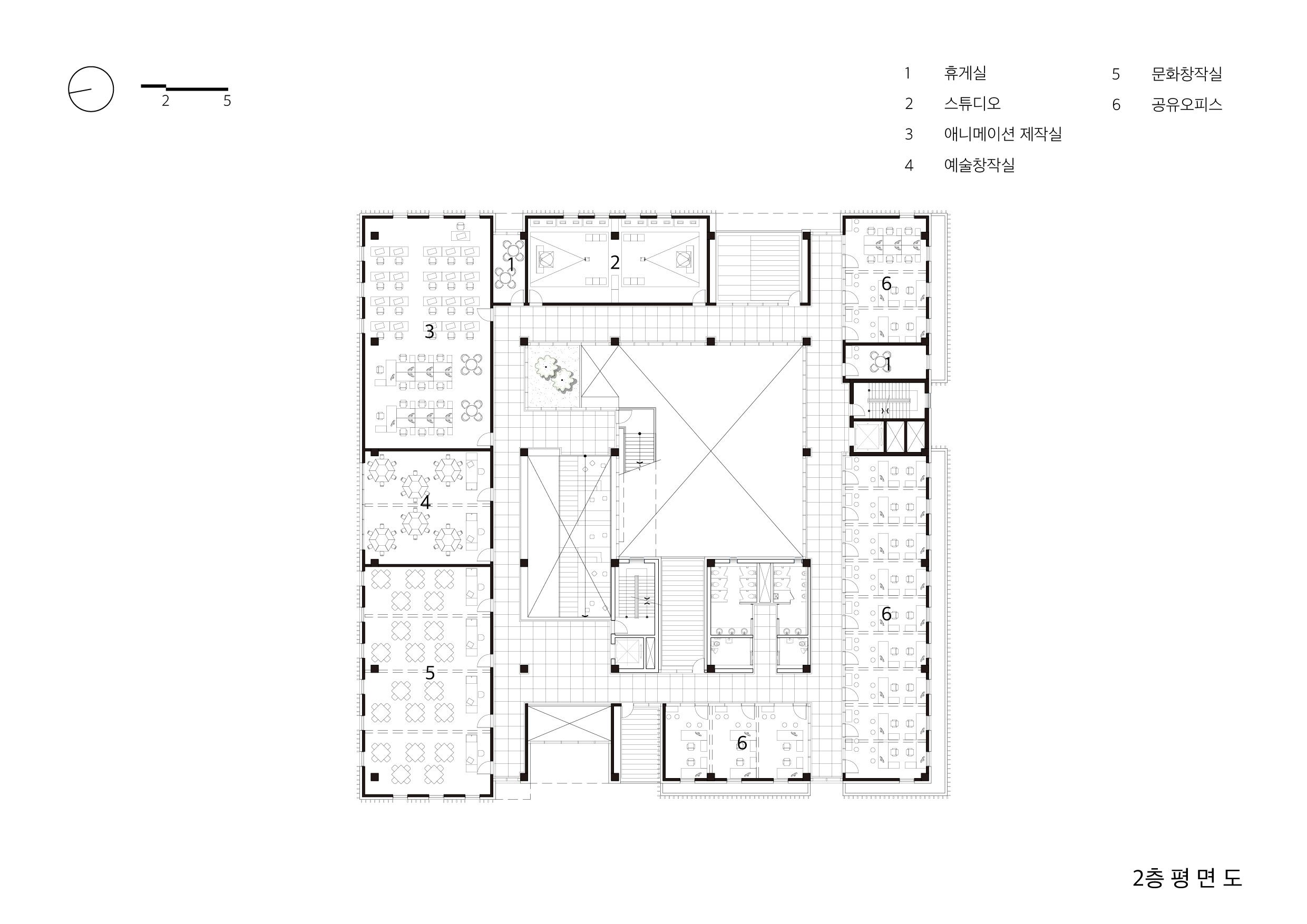
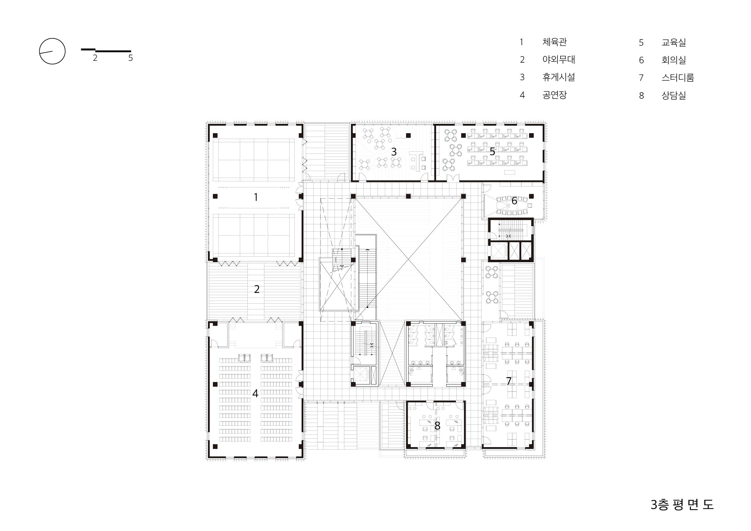
  • 대지위치
    • 전라남도 순천시 풍덕동 1788,1789
  • 주요용도
    • 청년비전센터
  • 대지면적
    • 30,910.10㎡
  • 건축면적
    • 5,602.11㎡
  • 연면적
    • 11,030.01㎡
  • 규모
    • 지상3층
  • 구조
    • 철근콘크리트구조, 철골구조
  • 외부마감재
    • 금속패널, 테라코타루버, 화강석, 로이복층유리, 벽면녹화
  • 설계기간
    • 2024. 04
  • 대지위치
    • 전라남도 순천시 풍덕동 1788,1789
  • 주요용도
    • 청년비전센터
  • 대지면적
    • 30,910.10㎡
  • 건축면적
    • 5,602.11㎡
  • 연면적
    • 11,030.01㎡
  • 규모
    • 지상3층
  • 구조
    • 철근콘크리트구조, 철골구조
  • 외부마감재
    • 금속패널, 테라코타루버, 화강석, 로이복층유리, 벽면녹화
  • 설계기간
    • 2024. 04